Tous les bureaux à louer
Tous les bureaux à vendre
Confier mon bien
Tous les coworking
Toutes les autres offres avec Néo-Nomade
Tous les entrepôts à louer
Tous les entrepôts à vendre
Tous les commerces à louer
Tous les commerces à vendre
Tous les commerces à céder
Aucun élément trouvé.
Ce bien vous intéresse ?
Afficher le numéro
Autres : Bureaux à vendre Balma / Bureaux à vendre Haute-Garonne / Bureaux à vendre Midi-Pyrénées
Proches : Toulouse / Labege / Ramonville-Saint-Agne
Annonce mise à jour le 08/01/2026
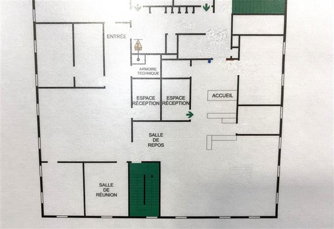
Bureaux à vendre à BALMA dans un immeuble récent situé à proximité du Métro. Locaux en très bon état. Possible acquisition du mobilier en place. Emplacements de voitures couverts.Accès direct par la Route de Lavaur et par la rocade (sortie 15).Lignes de bus n° 20 - 68 et 72.Terminus ligne A du métro à 600 mètres.Fibre et câblage RJ 45.
Au sein d’un immeuble de bureaux récent (2012) en R+3, situé à 700 mètres du métro Balma Gramont.Surface utile de 284.20 m² en R+1.Plateau récemment aménagé, en très bon état : open-space, bureaux privatifs, salle de réunion.Climatisation réversible gainableCâblage RJ 45, immeuble fibréProduction électricité panneau solaire en toiture de la copropriété Sanitaires en parties communes, Accès PMR.Possibilité d’acquérir le mobilier en sus du prix de vente.Parkings : 11 places couvertes et sécurisées. . Etat : Ancien
Caractéristiques :
DPE
Votre contact
Jonathan HILAIRE
Vente/Location bureau BALMA
Disponibilité : 24 mois ap. déb. trx
Vente/Location bureau BLAGNAC
Disponibilité : Immédiate
Vente/Location bureau TOULOUSE
Disponibilité : 12 mois ap. déb. trx
Vente bureau BEAUZELLE
Disponibilité : Mars 2026
Vente/Location bureau MURET
Vente bureau TOULOUSE
Disponibilité : Décembre 2026
Location bureau NANTES
Location bureau ARCUEIL
Location bureau MAUGUIO
Location commerce BIARRITZ
Vente/Location bureau ORVAULT
Disponibilité : 15 mois ap. déb. trx
Location bureau MARSEILLE 15ème (13015)
Disponibilité : Selon les lots
Vente local d'activités CACHAN
Location bureau BRIGNOLES
Location local d'activités REIMS
Vente bureau DAX
Disponibilité : 1er Semestre 2025
Vous pouvez indiquer plusieurs adresses e-mail séparées par des virgules
En cliquant sur le bouton, vous acceptez que les informations ci-dessus soient enregistrées par CBRE
Les offres ajoutées en favori seront perdues en fin de session. Pour conserver vos données et bénéficier d'autres avantages, nous vous invitons à vous identifier ou à créer un compte CBRE.