Location local d'activités TOULOUSE - 690 m²

Localisation31100 TOULOUSE
Planifier une visitePlanifier une visite
Local d'activités Location 31100 TOULOUSE
Disponibilité Immédiate
Local d'activités Location 31100 TOULOUSE Local d'activités Location 31100 TOULOUSE Local d'activités Location 31100 TOULOUSE Local d'activités Location 31100 TOULOUSE Local d'activités Location 31100 TOULOUSE Local d'activités Location 31100 TOULOUSE Local d'activités Location 31100 TOULOUSE

Ce bien vous intéresse ?

Afficher le numéro

Description Aménagements Surfaces Localisation Energies Infos Marché

Description

Annonce mise à jour le 15/01/2026

Locaux d'activité avec bureaux à louer dans un bâtiment récent proche de la sortie rocade Ouest, au cœur de la Zone Industrielle du Chapitre.

Proximité immédiate de la RN 20, de l'A.64 et de la rocade Ouest (sortie n° 36).
Zone desservie par les transports en commun.
Au cœur de la Zone du Chapitre.
Local d'activité avec bureaux ..

Aménagements

Aménagements :
Dans un Bâtiment en bardage métallique double peau .
Toiture bac acier isolé.

Aménagement pour chaque lot :
Partie dépôt:
Dalle béton lissé
Trappes de désenfumage
Une porte sectionnelle motorisée.

Bureaux cloisonnés et climatisés.

Site sécurisé .
Portail automatique avec télécommande
programmable.
Site clos, accessible aux gros porteurs.

6 Parkings extérieurs.

. Etat : Récent

Caractéristiques :

  • Portes de plain-pied
  • Chauffage
  • Site sécurisé

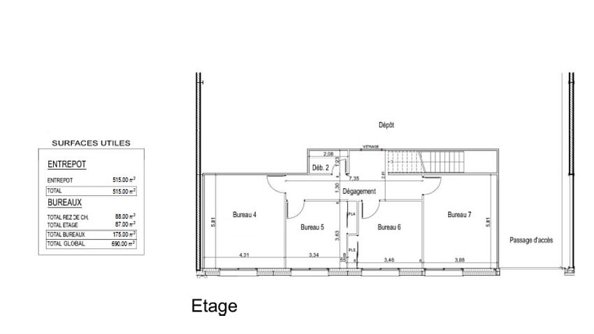
Surfaces

BâtimentLotEtageNatureSurface (m²)Disponibilité
BB4R1Bureaux175Immédiate
BB4Rez-de-chausséeActivités515Immédiate
Total bâtiment   690 

Localisation

Localisation
31100 TOULOUSE
Facilités
Proximité immédiate de la RN 20, de l'A.64 et de la rocade Ouest (sortie n° 38).
Zone desservie par les transports en commun.Ligne L4

Energies

DPE

Diagnostic de performance énergétique

Informations sur le Marché

Loyer : Nous contacter
690 m²
Divisibilité min. 515 m²
Nous contacter
 
690 m²
Divisibilité min. 515 m²
Nous contacter
Céline ALBY

Votre contact

Céline ALBY

À l'envoi, vous acceptez nos CGU
Envie de faciliter votre recherche ? Créer un compte

Annonces similaires

Vos favoris

Les offres ajoutées en favori seront perdues en fin de session. Pour conserver vos données et bénéficier d'autres avantages, nous vous invitons à vous identifier ou à créer un compte CBRE.

Aucun élément trouvé.
Loading...