Vente local d'activités LIEUSAINT - 1 340 m²

Localisation77127 LIEUSAINT
Planifier une visitePlanifier une visite
Local d'activités Vente 77127 LIEUSAINT
Disponibilité Immédiate
Local d'activités Vente 77127 LIEUSAINT Local d'activités Vente 77127 LIEUSAINT Local d'activités Vente 77127 LIEUSAINT Local d'activités Vente 77127 LIEUSAINT Local d'activités Vente 77127 LIEUSAINT Local d'activités Vente 77127 LIEUSAINT Local d'activités Vente 77127 LIEUSAINT Local d'activités Vente 77127 LIEUSAINT Local d'activités Vente 77127 LIEUSAINT Local d'activités Vente 77127 LIEUSAINT Local d'activités Vente 77127 LIEUSAINT

Ce bien vous intéresse ?

Afficher le numéro

Description Aménagements Surfaces Localisation Energies Infos Marché

Description

Annonce mise à jour le 23/01/2026

CBRE vous propose à vendre, un entrepôt/local d'activités bénéficiant de cellules neuves. Situé sur la commune de Lieusaint (77) dans le département de Seine-et-Marne, et à proximité de l’autoroute A5, sur la ligne D du RER d’Île-de-France. Ce local industriel est édifié sur un site clos et sécurisé, dispose d’une porte de plain-pied par lot et plusieurs places de parking. Surface de 1 340 m² divisibles à partir de 235 m². Entrepôt en vente idéal pour le développement de vos activités professionnelles. Disponible immédiatement.

Mener à bien son projet d'implantation pour une activité industrielle doit passer par des locaux adaptés à ses besoins. Si cet entrepôt/local d’activités à vendre dans le 77 vous intéresse ou si vous souhaitez obtenir plus de renseignements, n'hésitez pas à me contacter aujourd'hui pour organiser une visite et bénéficier de toutes les informations nécessaires pour votre projet immobilier.

En tant qu'expert en immobilier industriel, je suis à votre disposition pour vous aider...

Aménagements


Construction :
Ossature : Métallique       
Murs Périmétriques : Bardage double peau
Couverture : Bac acier double peau isolante
Haut. libre max. ss poutre : 7 m
Résistance Sol : 3 T/m²

Aménagements :
. Climatisation réversible Daikn dans les bureaux
. Borne de rechargement pour les véhicules électriques
. Fibre optique
. Panneaux photovoltaïques
. Porte sectionnelle de plain-pied hauteur 3,5m
. Chauffage aérotherme dans la partie activité
. Prises électriques bureaux/activités
. Alimentation triphasée bleu
. Eclairage naturel par Skydome
. Site avec clôture et portail

. Parking :
Lot 201 : 6 places
Lot 202 : 6 places
Lot 203 : 6 places
Lot 204 : 5 places
Lot 205 : 5 places

Caractéristiques :

  • Structure / Couverture
  • Bornes de recharge électrique
  • Chauffage
  • Climatisation
  • Éclairage
  • Bureaux
  • Site sécurisé
  • Hauteur libre
  • Prestations locaux activité / entrepôt

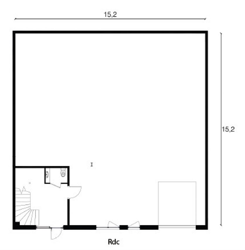
Surfaces

BâtimentCelluleLotEtageNatureSurface (m²)DisponibilitéPrix de vente
B2012011er étageBureaux61ImmédiateNous contacter
B201201Rez-de-chausséeActivités229ImmédiateNous contacter
B2022021er étageBureaux61ImmédiateNous contacter
B202202Rez-de-chausséeActivités229ImmédiateNous contacter
B2032031er étageBureaux61ImmédiateNous contacter
B203203Rez-de-chausséeActivités229ImmédiateNous contacter
B2042041er étageBureaux49ImmédiateNous contacter
B204204Rez-de-chausséeActivités186ImmédiateNous contacter
B2052051er étageBureaux49ImmédiateNous contacter
B205205Rez-de-chausséeActivités186ImmédiateNous contacter
Total bâtiment    1 340  

Localisation

Localisation
77127 LIEUSAINT
Facilités
Lieusaint-Moissy (D)

Energies

DPE

Diagnostic de performance énergétique

Informations sur le Marché

Prix : A partir de 1 805 € m² HT

Prix des Entrepôts/Locaux d'activités à vendre Lieusaint

État du bien

Prix bas

Prix haut

Neuf/Restructuré
1 300 €/m²
2 700 €/m²
Rénové
Non spécifié 
Non spécifié 
État d'usage
700 €/m²
2 000 €/m²
1 675
€/m²

en moyenne

Cette valeur n’est pas exhaustive et ne saurait en rien remplacer l’avis d’un expert pour un bien spécifique.

1 340 m²
Divisibilité min. 235 m²
A partir de 1 805 € m² HT
 
1 340 m²
Divisibilité min. 235 m²
A partir de 1 805 € m² HT
Nicolas MARLIERE

Votre contact

Nicolas MARLIERE

À l'envoi, vous acceptez nos CGU
Envie de faciliter votre recherche ? Créer un compte

Annonces similaires

Vos favoris

Les offres ajoutées en favori seront perdues en fin de session. Pour conserver vos données et bénéficier d'autres avantages, nous vous invitons à vous identifier ou à créer un compte CBRE.

Aucun élément trouvé.
Loading...