Vente/Location local d'activités RILLIEUX LA PAPE - 2 810 m²

Localisation69140 RILLIEUX LA PAPE
Planifier une visitePlanifier une visite
Local d'activités Vente/Location 69140 RILLIEUX LA PAPE
Disponibilité 12 mois ap. déb. trx
Local d'activités Vente/Location 69140 RILLIEUX LA PAPE Local d'activités Vente/Location 69140 RILLIEUX LA PAPE Local d'activités Vente/Location 69140 RILLIEUX LA PAPE Local d'activités Vente/Location 69140 RILLIEUX LA PAPE Local d'activités Vente/Location 69140 RILLIEUX LA PAPE Local d'activités Vente/Location 69140 RILLIEUX LA PAPE Local d'activités Vente/Location 69140 RILLIEUX LA PAPE

Ce bien vous intéresse ?

Afficher le numéro

Description Aménagements Surfaces Localisation Energies Infos Marché

Description

Annonce mise à jour le 17/03/2026

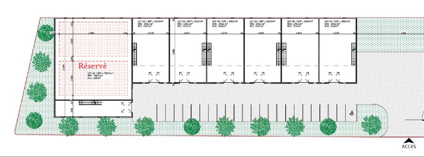
Vous recherchez une petite surface d'activités à vendre ou à louer? Votre agence CBRE Lyon vous propose de découvrir le programme LAAX PARK, situé à Rillieux la Pape, proposant des lots allant de 197 m² à 643 m² à la vente ou à la location. Ces locaux industriels sont répartis sur 2 bâtiments, eux mêmes construits sur un terrain de 8 194 m². Possibilité d'installer une mezzanine dans tous les lots. Ces biens se situent à proximité de grands axes de circulation tels que les autoroute A42 et A46 ainsi que le périphérique Nord.

Ces surfaces bénéficient d'un environnement dynamique avec tous les services de proximité disponibles tels que salle de sport, pharmacie, supermarchés...

Aménagements


Construction :
Surface Terrain : 8194 m²

Aménagements :
Qualité architecturale et luminosité
Portes sectionnelles de 3 x 3.5m
Façade vitrée
Possibilité de mezzanine
40 stationnements VL et parking vélo
Panneaux photovoltaïques

. Etat : Neuf

Caractéristiques :

  • Prestations locaux activité / entrepôt
  • Bureaux
  • Neuf ou restructuré

Surfaces

BâtimentLotNatureSurface (m²)DisponibilitéLoyerPrix de vente
AAParkingsImmédiate600 €/place/an HT HC5 000 €/place HD
AA2Activités19712 mois ap. déb. trx130 €/m²/an HT HC1 550 €/m² HD
AA3Activités19712 mois ap. déb. trx130 €/m²/an HT HC1 550 €/m² HD
AA4Activités19712 mois ap. déb. trx130 €/m²/an HT HC1 550 €/m² HD
AA5Activités19712 mois ap. déb. trx130 €/m²/an HT HC1 550 €/m² HD
AA6Activités19712 mois ap. déb. trx130 €/m²/an HT HC1 550 €/m² HD
AA7Activités19712 mois ap. déb. trx130 €/m²/an HT HC1 550 €/m² HD
Total bâtiment  1 182   
BâtimentLotNatureSurface (m²)DisponibilitéLoyerPrix de vente
BBParkingsImmédiate600 €/place/an HT HC5 000 €/place HD
BB1Activités64312 mois ap. déb. trx130 €/m²/an HT HC1 550 €/m² HD
BB2Activités19712 mois ap. déb. trx130 €/m²/an HT HC1 550 €/m² HD
BB3Activités19712 mois ap. déb. trx130 €/m²/an HT HC1 550 €/m² HD
BB4Activités19712 mois ap. déb. trx130 €/m²/an HT HC1 550 €/m² HD
BB5Activités19712 mois ap. déb. trx130 €/m²/an HT HC1 550 €/m² HD
BB6Activités19712 mois ap. déb. trx130 €/m²/an HT HC1 550 €/m² HD
Total bâtiment  1 628   
Total général : 2810 m²

Localisation

Localisation
69140 RILLIEUX LA PAPE
Facilités
Gare de Sathonay à moins de 5 minutes
Accès rapide aux autoroutes A42, A46 et périphérique Nord
Ligne Bus renforcé C2 à 5 minutes ralliant Part Dieu en 25 minutes
Bus ZI4

Energies

DPE

Diagnostic de performance énergétique

Informations sur le Marché

Prix : 1 550 € m² HD
Loyer : 130 € m²/an HT HC
2 810 m²
Divisibilité min. 197 m²
1 550 € m² HD / 130 € m²/an HT HC
 
2 810 m²
Divisibilité min. 197 m²
1 550 € m² HD / 130 € m²/an HT HC
Contact

Votre contact

Nisrine SADAOUI

À l'envoi, vous acceptez nos CGU
Envie de faciliter votre recherche ? Créer un compte

Annonces similaires

Vos favoris

Les offres ajoutées en favori seront perdues en fin de session. Pour conserver vos données et bénéficier d'autres avantages, nous vous invitons à vous identifier ou à créer un compte CBRE.

Aucun élément trouvé.
Loading...