Location local d'activités LYON 7ème (69007) - 1 217 m²

Localisation69007 LYON
Planifier une visitePlanifier une visite
Local d'activités Location 69007 LYON
Disponibilité Immédiate
Local d'activités Location 69007 LYON Local d'activités Location 69007 LYON Local d'activités Location 69007 LYON Local d'activités Location 69007 LYON Local d'activités Location 69007 LYON Local d'activités Location 69007 LYON Local d'activités Location 69007 LYON Local d'activités Location 69007 LYON Local d'activités Location 69007 LYON Local d'activités Location 69007 LYON Local d'activités Location 69007 LYON Local d'activités Location 69007 LYON Local d'activités Location 69007 LYON Local d'activités Location 69007 LYON Local d'activités Location 69007 LYON

Ce bien vous intéresse ?

Afficher le numéro

Description Aménagements Surfaces Localisation Energies Infos Marché

Description

Annonce mise à jour le 26/11/2025

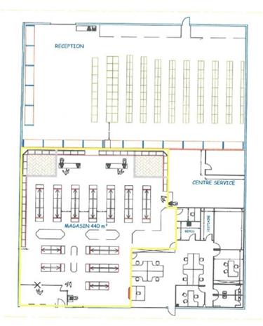
Vous recherchez des locaux d'activités à louer dans le 7ème arrondissement de Lyon ? Votre agence CBRE, spécialisée en immobilier d''entreprise vous propose de découvrir cette surface industrielle idéalement située dans le quartier de GERLAND. Ce local d'activités de 1 217 m² se divise en 3 espaces : une zone d'accueil, un magasin accessible avec une porte automatique vitrée, une zone de bureau et une zone de stockage bénéficiant d'un accès livraison.

Ce local se situe au sein du Parc Gerland 17, à proximité de la place Jean Macé et bénéficie donc d'une excellente desserte en transports en commun TCL grâce au métro B, et aux lignes de tramway T2, T3, et T6.

Aménagements

Aménagements :
3 espaces : 1 zone accueil / magasin accessible avec une pote automatique vitrée, 1 zone bureau, 1 zone stockage bénéficiant d’un accès livraison sur la rue de l’Asphalte.
. Etat : Ancien

Caractéristiques :

  • Prestations locaux activité / entrepôt

Surfaces

EtageNatureSurface (m²)DisponibilitéLoyerCharges locataire
Rez-de-chausséeActivités1 217Immédiate74 €/m²/an HT HC03 €/HT/m²/an

Localisation

Localisation
69007 LYON
Facilités
A7, A6
Boulevard périphérique
Ligne B
T2
Bus TCL ligne 96

Energies

DPE

Diagnostic de performance énergétique

Informations sur le Marché

Loyer : 74 € /m²/an HT HC
1 217 m²
Non divisible
74 € /m²/an HT HC
 
1 217 m²
Non divisible
74 € /m²/an HT HC
Contact

Votre contact

Nisrine SADAOUI

À l'envoi, vous acceptez nos CGU
Envie de faciliter votre recherche ? Créer un compte

Annonces similaires

Vos favoris

Les offres ajoutées en favori seront perdues en fin de session. Pour conserver vos données et bénéficier d'autres avantages, nous vous invitons à vous identifier ou à créer un compte CBRE.

Aucun élément trouvé.
Loading...