Vente bureau NICE - 3 430 m²

Localisation06200 NICE
Planifier une visitePlanifier une visite
Bureau Vente 06200 NICE
Disponibilité 18 mois ap. déb. trx
Bureau Vente 06200 NICE Bureau Vente 06200 NICE Bureau Vente 06200 NICE Bureau Vente 06200 NICE Bureau Vente 06200 NICE Bureau Vente 06200 NICE Bureau Vente 06200 NICE Bureau Vente 06200 NICE Bureau Vente 06200 NICE Bureau Vente 06200 NICE Bureau Vente 06200 NICE Bureau Vente 06200 NICE Bureau Vente 06200 NICE Bureau Vente 06200 NICE Bureau Vente 06200 NICE Bureau Vente 06200 NICE Bureau Vente 06200 NICE

Ce bien vous intéresse ?

Afficher le numéro

Description Aménagements Surfaces Localisation Energies Infos Marché

Description

Annonce mise à jour le 27/01/2026

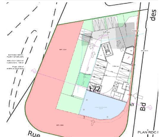
NICE OUEST PLAINE DU VAR - CBRE vous propose en VEFA un immeuble de bureaux s'élevant sur 6 étages pour totaliser une superficie d'environ 3 430 m², soit environ 545 m² par niveau, divisible en 2. Cet ensemble de bureaux à vendre, de nature orientée médicale, est prévu pour le T3 2028 et sera proposé dans les conditions suivantes: bureaux bruts, panneaux photovoltaïques, parties communes et clôtures/portails finalisées. 63 places de parking intérieures à vendre en sus complètent cette offre.

Emplacement idéal avec accès véhicule facilité via l'autoroute A8; proximité immédiate du tramway (ligne 3 - arrêt Stade à 5 min). Nombreuses offres de restauration à 5 minutes à pieds.

Si vous êtes intéressés par ces futurs bureaux à vendre à NICE OUEST - PLAINE DU VAR (06200), ou si vous souhaitez obtenir plus d'informations, n'hésitez pas à nous contacter pour planifier une visite et obtenir toutes les informations requises pour votre projet immobilier.

Aménagements

. Façade béton
. Toiture terrasse avec possibilité d'y installer les groupes clim
. Prix inclut bureaux bruts et panneaux photovoltaïques
. Clôtures et portails inclus
. Parties communes prévues finies
. Parkings prévus bruts avec 2 montes voitures

Calendrier provisoire:
. Dépôt PC Juin 2026
. Obtention PC purgé Décembre 2026
. Début des travaux T1 2027
. Livraison T3 2028

. 62 places de parking sur 4 niveaux (RDC et inférieurs)

. Orienté professions médicales (radiologie en RDC)
. Etat : Neuf

Surfaces

EtageNatureSurface (m²)DisponibilitéPrix de vente
6ème étageBureaux27518 mois ap. déb. trx3 800 €/m² HT
6ème étageBureaux27018 mois ap. déb. trx3 800 €/m² HT
5ème étageBureaux27018 mois ap. déb. trx3 800 €/m² HT
5ème étageBureaux27518 mois ap. déb. trx3 800 €/m² HT
4ème étageBureaux27518 mois ap. déb. trx3 800 €/m² HT
4ème étageBureaux27018 mois ap. déb. trx3 800 €/m² HT
3ème étageBureaux27018 mois ap. déb. trx3 800 €/m² HT
3ème étageBureaux27518 mois ap. déb. trx3 800 €/m² HT
2ème étageBureaux27518 mois ap. déb. trx3 800 €/m² HT
2ème étageBureaux27018 mois ap. déb. trx3 800 €/m² HT
1er étageBureaux27018 mois ap. déb. trx3 800 €/m² HT
1er étageBureaux27518 mois ap. déb. trx3 800 €/m² HT
Rez-de-chausséeBureaux16018 mois ap. déb. trx3 800 €/m² HD
Rez-de-chausséeParkings18 mois ap. déb. trx15 000 €/place HT
Sous-solParkings18 mois ap. déb. trx31 000 €/place HT
Total bâtiment 3 430  

Localisation

Localisation
06200 NICE
Facilités
Route de Grenoble
M6202bis
A8
Réseau Lignes d'Azur
Ligne 3
Nice Saint Augustin
Aéroport Nice Côte d'Azur

Energies

DPE

Diagnostic de performance énergétique

Informations sur le Marché

Prix : 3 800 € m² HT
3 430 m²
Divisibilité min. 160 m²
3 800 € m² HT
 
3 430 m²
Divisibilité min. 160 m²
3 800 € m² HT
Lewis BALABANIAN

Votre contact

Lewis BALABANIAN

À l'envoi, vous acceptez nos CGU
Envie de faciliter votre recherche ? Créer un compte
Vos favoris

Les offres ajoutées en favori seront perdues en fin de session. Pour conserver vos données et bénéficier d'autres avantages, nous vous invitons à vous identifier ou à créer un compte CBRE.

Aucun élément trouvé.
Loading...