Vente bureau WASQUEHAL - 772 m²

Localisation59290 WASQUEHAL
Planifier une visitePlanifier une visite
Bureau Vente 59290 WASQUEHAL
Disponibilité Immédiate
Bureau Vente 59290 WASQUEHAL Bureau Vente 59290 WASQUEHAL Bureau Vente 59290 WASQUEHAL Bureau Vente 59290 WASQUEHAL Bureau Vente 59290 WASQUEHAL Bureau Vente 59290 WASQUEHAL Bureau Vente 59290 WASQUEHAL Bureau Vente 59290 WASQUEHAL Bureau Vente 59290 WASQUEHAL Bureau Vente 59290 WASQUEHAL Bureau Vente 59290 WASQUEHAL Bureau Vente 59290 WASQUEHAL

Ce bien vous intéresse ?

Afficher le numéro

Description Aménagements Surfaces Localisation Energies Infos Marché

Description

Annonce mise à jour le 30/04/2026

CBRE vous propose à la vente des surfaces de bureaux climatisés au sein du parc tertiaire paysagé de Château Blanc situé sur les Grands Boulevards. Dans un des plus beaux environnements résidentiels et d'affaires de la région, le Château Blanc s'intègre dans un écrin de verdure bordé par la Marque. Le bâtiment I étant implanté dans la dernière phase du parc, il vous permet de bénéficier de prestations de qualité.

Aménagements

. Ascenseur
. Balcons en R+1 et R+2
. Climatisation réversible
. Faux plafonds
. Espaces verts
. Goulottes périphériques
. Hauteur libre sous faux plafond d’environ 2,50 m
. Plateaux flexibles, peu de contraintes porteuses
. Parking à vélo sécurisé
. Sanitaires PMR communs

. 32 places de stationnement :
Inclues dans le loyer
Prix : 6 000 €/U
Ratio parkings de 1/23 m²

Possibilité de rénovation : 2 700 €/m² HT

. Les charges comprennent : nettoyage et entretien de l'immeuble, maintenance de l'ascenseur, sureté et sécurité du bâtiment, la climatisation et le chauffage, les honoraires de gestion technique et l'assurance de l'immeuble.
. Etat : Récent

Caractéristiques :

  • Climatisation
  • Espace extérieur
  • Ascenseur

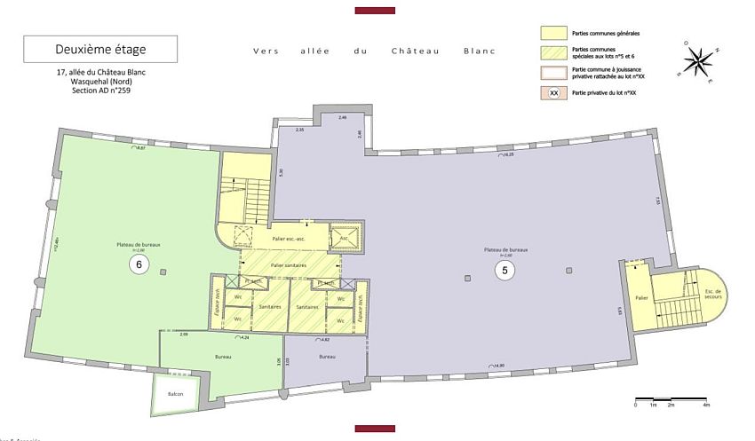
Surfaces

LotEtageNatureSurface (m²)DisponibilitéPrix de venteCharges propriétaire
1Rez-de-chausséeBureaux231Immédiate2 400 €/m² HD34 €/m²/an HT
2Rez-de-chausséeBureaux155Immédiate2 400 €/m² HD34 €/m²/an HT
41er étageBureaux132Immédiate2 400 €/m² HD34 €/m²/an HT
52ème étageBureaux254Immédiate2 400 €/m² HD34 €/m²/an HT
Total bâtiment  772   

Localisation

Localisation
59290 WASQUEHAL
Facilités
. Tramway - station "le Cartelot"
. Gare SNCF à 10 mn
. A1 et A22
. Voie rapide urbaine
. Rocade
. Grands boulevards

Energies

DPE

Diagnostic de performance énergétique

Informations sur le Marché

Prix : 2 400 € m² HD
772 m²
Divisibilité min. 132 m²
2 400 € m² HD
 
772 m²
Divisibilité min. 132 m²
2 400 € m² HD
Louise RENAULT

Votre contact

Louise RENAULT

À l'envoi, vous acceptez nos CGU
Envie de faciliter votre recherche ? Créer un compte

Annonces similaires

Vos favoris

Les offres ajoutées en favori seront perdues en fin de session. Pour conserver vos données et bénéficier d'autres avantages, nous vous invitons à vous identifier ou à créer un compte CBRE.

Aucun élément trouvé.
Loading...