Location bureau TOULOUSE - 634 m²

Localisation31100 TOULOUSE
Planifier une visitePlanifier une visite
Bureau Location 31100 TOULOUSE
Disponibilité Selon les lots
Bureau Location 31100 TOULOUSE Bureau Location 31100 TOULOUSE Bureau Location 31100 TOULOUSE Bureau Location 31100 TOULOUSE Bureau Location 31100 TOULOUSE Bureau Location 31100 TOULOUSE Bureau Location 31100 TOULOUSE Bureau Location 31100 TOULOUSE

Ce bien vous intéresse ?

Afficher le numéro

Description Aménagements Surfaces Localisation Energies Infos Marché

Description

Annonce mise à jour le 07/01/2026

Bureaux à louer à TOULOUSE, dans le Parc Tertiaire de Basso-Cambo. Au pied du métro. Dans un bâtiment indépendant en R+1. Bon état général.

Dans un ensemble d'immeubles en R+1 sur un site clôturé et fermé.
Parkings privatifs.
Terminus ligne A du métro à proximité immédiate.
Correspondance nombreuses lignes de bus.
Accès aisé par les Rocades Ouest et Arc-En-Ciel.

Aménagements

Dans un site fermé et clôturé .
Immeuble en R+1
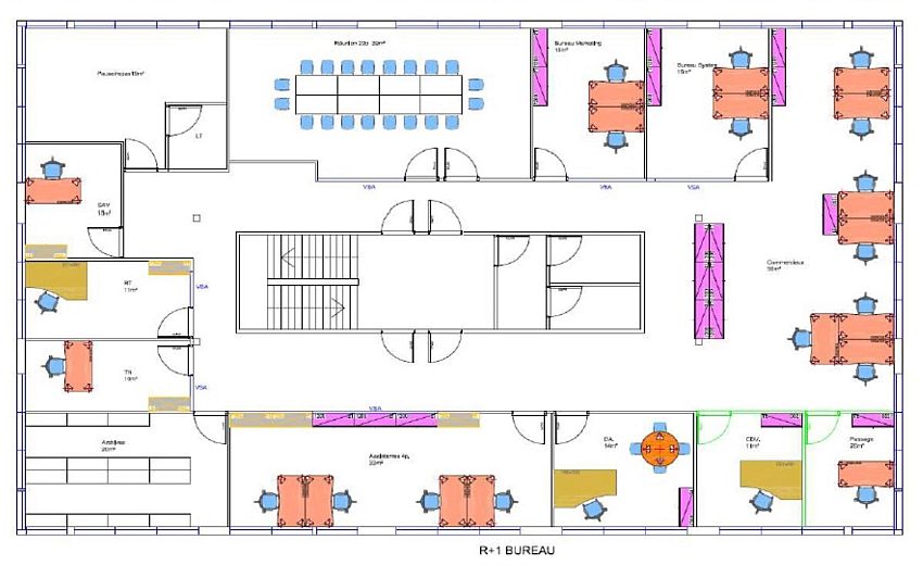
Locaux livrés déjà cloisonnés.

Câblage RJ 45 et rafraîchissement d'air.

Parkings privatifs extérieurs :
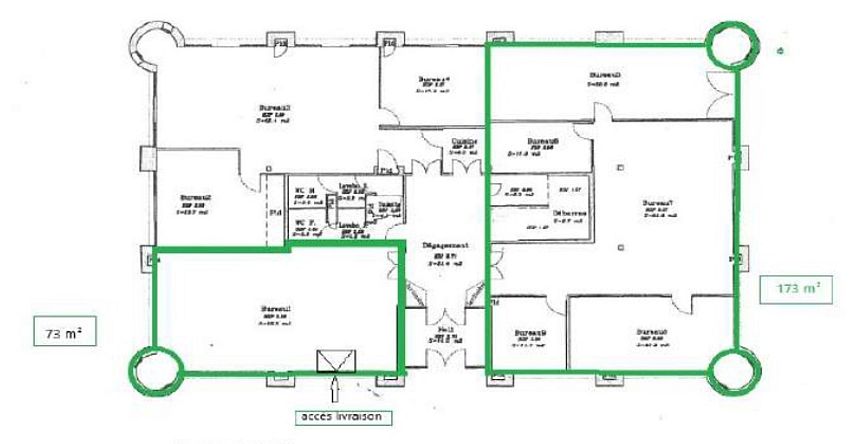
Lot 73 m² : 3 emplacements
Lot 173 m² : 7 emplacements
Lot 388 m² : 14 emplacements
. Etat : Ancien

Caractéristiques :

  • Parkings

Surfaces

BâtimentEtageNatureSurface (m²)DisponibilitéLoyerCharges locataire
11er étageBureaux388Mars 2026110 €/m²/an HT HC25 €/HT/m²/an
1Rez-de-chausséeBureaux173Immédiate110 €/m²/an HT HC25 €/m²/an HT
1Rez-de-chausséeBureaux73Mars 2026110 €/m²/an HT HC25 €/HT/m²/an
Total bâtiment  634   

Localisation

Localisation
31100 TOULOUSE
Facilités
Terminus ligne A du métro à proximité immédiate.
Plusieurs Lignes de bus,
Accès par les Rocades Ouest et Arc-En-Ciel.

Energies

DPE

Diagnostic de performance énergétique

Informations sur le Marché

Loyer : 110 € /m²/an HT HC
634 m²
Divisibilité min. 73 m²
110 € /m²/an HT HC
 
634 m²
Divisibilité min. 73 m²
110 € /m²/an HT HC
Jonathan HILAIRE

Votre contact

Jonathan HILAIRE

À l'envoi, vous acceptez nos CGU
Envie de faciliter votre recherche ? Créer un compte

Annonces similaires

Vos favoris

Les offres ajoutées en favori seront perdues en fin de session. Pour conserver vos données et bénéficier d'autres avantages, nous vous invitons à vous identifier ou à créer un compte CBRE.

Aucun élément trouvé.
Loading...