Vente local d'activités VILLEURBANNE - 5 089 m²

Localisation69100 VILLEURBANNE
Planifier une visitePlanifier une visite
Local d'activités Vente 69100 VILLEURBANNE
Disponibilité Immédiate
Local d'activités Vente 69100 VILLEURBANNE Local d'activités Vente 69100 VILLEURBANNE Local d'activités Vente 69100 VILLEURBANNE Local d'activités Vente 69100 VILLEURBANNE Local d'activités Vente 69100 VILLEURBANNE Local d'activités Vente 69100 VILLEURBANNE Local d'activités Vente 69100 VILLEURBANNE

Ce bien vous intéresse ?

Afficher le numéro

Description Aménagements Surfaces Localisation Energies Infos Marché

Description

Annonce mise à jour le 25/03/2026

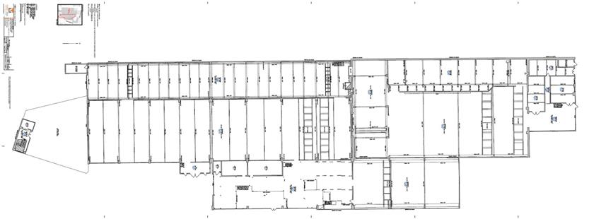
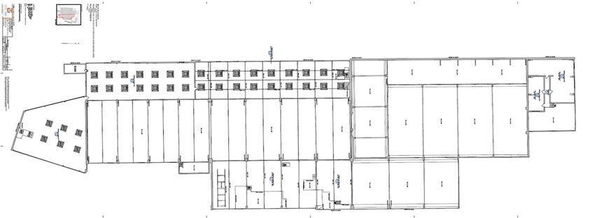
LOGISTIQUE URBAINE - Rare sur le secteur ! CBRE Lyon vous propose cet ensemble industriel à vendre, à proximité immédiate du périphérique Laurent Bonnevay, sur la commune de Villeurbanne. Ce local industriel dispose de plusieurs ponts roulants. Entrepôt en vente, idéal pour le développement de vos activités professionnelles.

Aménagements


Construction :
Surface Terrain : 7900 m²

Aménagements :
. Accueil
. Transformateur électrique
. Onduleur
. Monte-charge
. Ascenseur
. Hauteur sous-plafond : 9 m
. Puissance électrique : Tarif Jaune
. Pont roulant : 4 de 7,5T
. Eclairage zénithal par skydomes

. Cloison amovible
. Faux plafonds
. Faux planchers
. Plinthes périphériques
. Travaux à prévoir

. Ossature : Structure béton armé
. Murs périmétriques : Mur séparatif
. Couverture : Fibrociment
. Hauteur libre min. sous poutre : 8 m
. Hauteur libre max. sous poutre :11 m
. Résistance au sol : N.C

ACCES BATIMENT
. Aire de manœuvre : de 20 à 27 m
. Accès gros porteurs
. 3 portes à quai

. Etat : Ancien

Caractéristiques :

  • Terrain
  • Pont roulant
  • Éclairage
  • Bureaux
  • Portes de plain-pied

Surfaces

BâtimentEtageNatureSurface (m²)Disponibilité
A1er étageBureaux330Immédiate
AActivités1 536Immédiate
Total bâtiment  1 866 
BâtimentEtageNatureSurface (m²)Disponibilité
B1er étageBureaux314Immédiate
BActivités2 909Immédiate
Total bâtiment  3 223 
Total général : 5089 m²

Localisation

Localisation
69100 VILLEURBANNE
Facilités
[@logo11] Rue Léon Blum, Route de Genas, Bld Laurent Bonnevay
[@logo7] Tramway T6 : Arrêt Kimmerling - Genêts
[@logo5] TB12 : Arrêt Kimmerling - Genêts
[@logo5] C9 : Montchat Pinel
[@logo5] Ligne 25 : Cyprian - Genas

Energies

DPE

Diagnostic de performance énergétique

Informations sur le Marché

Prix : 2 400 000 € HD
5 089 m²
Non divisible
2 400 000 € HD
 
5 089 m²
Non divisible
2 400 000 € HD
Contact

Votre contact

Nisrine SADAOUI

À l'envoi, vous acceptez nos CGU
Envie de faciliter votre recherche ? Créer un compte
Vos favoris

Les offres ajoutées en favori seront perdues en fin de session. Pour conserver vos données et bénéficier d'autres avantages, nous vous invitons à vous identifier ou à créer un compte CBRE.

Aucun élément trouvé.
Loading...