Vente/Location bureau BEGLES - 683 m²

LocalisationCOGNITIK, 11 RUE FERDINAND BUISSON 33130 BEGLES Voir sur Street View
Planifier une visitePlanifier une visite
Bureau Vente/Location 33130 BEGLES 11 RUE FERDINAND BUISSON
Disponibilité Immédiate
Bureau Vente/Location 33130 BEGLES 11 RUE FERDINAND BUISSON Bureau Vente/Location 33130 BEGLES 11 RUE FERDINAND BUISSON Bureau Vente/Location 33130 BEGLES 11 RUE FERDINAND BUISSON Bureau Vente/Location 33130 BEGLES 11 RUE FERDINAND BUISSON

Ce bien vous intéresse ?

Afficher le numéro

Description Aménagements Surfaces Localisation Energies Infos Marché

Description

Annonce mise à jour le 02/02/2026

A Bègles, CBRE vous propose une belle opportunité à la location ou à la vente, au RDC d’un immeuble de bureaux de plus de 3 000m² et en plein cœur du parc Newton de 4,5 hectares. Deux lots de 326m² et 356m², livrés brut de béton au sein d’un immeuble neuf. Ces locaux sont disponibles immédiatement.

Le parc Newton dédié 100% aux entreprises fait partie du projet de réaménagement de la zone Euratlantique.

Aménagements

. 1 place de parking par cellule
. Capacité effectif par cellule : 190 personnes
. Local vélo
. Etat : Neuf

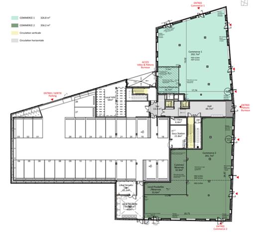
Surfaces

LotEtageNatureSurface (m²)DisponibilitéLoyerPrix de vente
1Rez-de-chausséeBureaux327ImmédiateNous contacterNous contacter
2Rez-de-chausséeBureaux356ImmédiateNous contacterNous contacter
Total bâtiment  683   

Localisation

Localisation
COGNITIK, 11 RUE FERDINAND BUISSON 33130 BEGLES
Facilités
Gare Saint-Jean à 2 km
Rocade sortie N°20 - Bègles
Ligne C arrêt « Stade Musard »
Parking Relais
Ligne de bus : n°15 et n°85 « « Saint Paulin »
Station V3 : Bègles Poste - Avenue Lucien Lerousseau

Energies

DPE

Diagnostic de performance énergétique

Informations sur le Marché

Prix : 2 000 € m² HD
Loyer : 160 € m²/an HT HC
683 m²
Divisibilité min. 327 m²
2 000 € m² HD / 160 € m²/an HT HC
 
683 m²
Divisibilité min. 327 m²
2 000 € m² HD / 160 € m²/an HT HC
Anna LELUC

Votre contact

Anna LELUC

À l'envoi, vous acceptez nos CGU
Envie de faciliter votre recherche ? Créer un compte

Annonces similaires

Vos favoris

Les offres ajoutées en favori seront perdues en fin de session. Pour conserver vos données et bénéficier d'autres avantages, nous vous invitons à vous identifier ou à créer un compte CBRE.

Aucun élément trouvé.
Loading...