Location bureau TOULOUSE - 350 m²

Localisation31400 TOULOUSE
Planifier une visitePlanifier une visite
Bureau Location 31400 TOULOUSE
Disponibilité Immédiate
Bureau Location 31400 TOULOUSE Bureau Location 31400 TOULOUSE Bureau Location 31400 TOULOUSE Bureau Location 31400 TOULOUSE Bureau Location 31400 TOULOUSE

Ce bien vous intéresse ?

Afficher le numéro

Description Aménagements Surfaces Localisation Energies Infos Marché

Description

Annonce mise à jour le 09/11/2025

Bureaux à louer sur un axe passant au Sud-Est de TOULOUSE. Environnement mixte (tertiaire-Activité-Commerces). Belle visibilité.

Bureaux cloisonnés et climatisés.
2 entrées.
Parking extérieur commun.
Travaux prévus par le Bailleur : remplacement du revêtement du sol.
Accès par la rocade Est (sortie 18).
Accès direct échangeur autoroutier via MONTPELLIER.
Lignes de bus n° 78 et 80.

Aménagements

Immeuble fibré.
Parking extérieur commun.

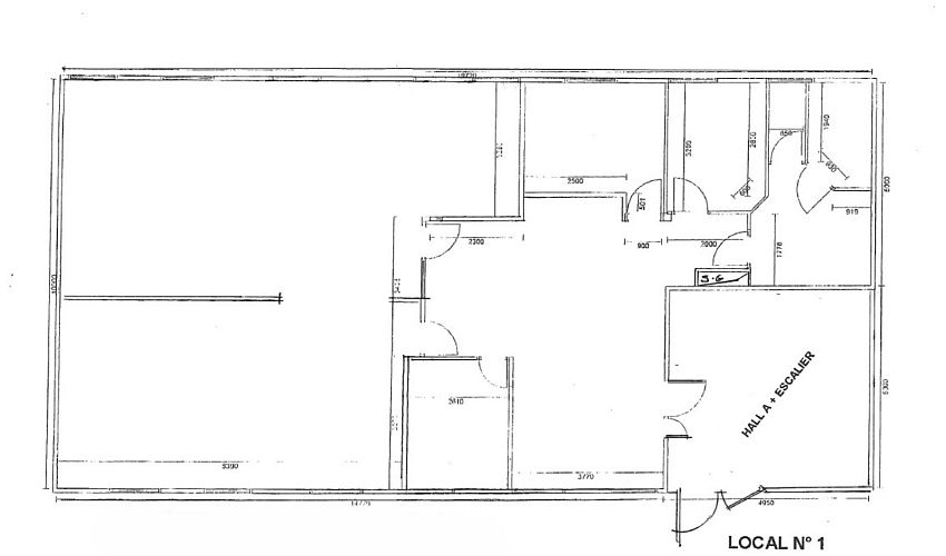
Aménagement Lot n° 4 : 3 bureaux, 1 couloir de distribution, 1 open-space et 1 sanitaire PMR.
2 entrées.
Climatisation réversible (gainable)

Aménagement Lot n° 5 : 6 bureaux, 1 couloir de distribution, sanitaires.
Lot climatisé et précâblé.

Travaux prévus par le Bailleur :
lot 4 : remplacement et extension du système de climatisation /Chauffage (Pompe à chaleur).Remplacement des pavés lumineux de plafond par des pavés LED.
Remise en peinture de la surface. Rééquipement du local sanitaire. Remplacement du sol.

Parties communes : remplacement de l'escalier .
. Etat : Ancien

Caractéristiques :

  • Parkings
  • Accessibilité PMR
  • Climatisation

Surfaces

BâtimentLotEtageNatureSurface (m²)DisponibilitéLoyerCharges locataire
14Rez-de-chausséeBureaux180Immédiate115 €/m²/an HT HC6 000 €/an HT
151er étageBureaux170Immédiate115 €/m²/an HT HC6 000 €/an HT
Total bâtiment   350   

Localisation

Localisation
31400 TOULOUSE
Facilités
Accès par la rocade Est (sortie 18).
Accès direct échangeur autoroutier via MONTPELLIER.
Lignes de bus n° 78 et 80.

Energies

DPE

Diagnostic de performance énergétique

Informations sur le Marché

Loyer : 115 € /m²/an HT HC
350 m²
Divisibilité min. 170 m²
115 € /m²/an HT HC
 
350 m²
Divisibilité min. 170 m²
115 € /m²/an HT HC
Jonathan HILAIRE

Votre contact

Jonathan HILAIRE

À l'envoi, vous acceptez nos CGU
Envie de faciliter votre recherche ? Créer un compte

Annonces similaires

Vos favoris

Les offres ajoutées en favori seront perdues en fin de session. Pour conserver vos données et bénéficier d'autres avantages, nous vous invitons à vous identifier ou à créer un compte CBRE.

Aucun élément trouvé.
Loading...