Vente bureau MONTPELLIER - 2 153 m²

LocalisationHALLE NOVA, RUE LADY ADA LOVELACE 34000 MONTPELLIER Voir sur Street View
Planifier une visitePlanifier une visite
Bureau Vente 34000 MONTPELLIER  RUE LADY ADA LOVELACE
Disponibilité Décembre 2026
Bureau Vente 34000 MONTPELLIER  RUE LADY ADA LOVELACE Bureau Vente 34000 MONTPELLIER  RUE LADY ADA LOVELACE Bureau Vente 34000 MONTPELLIER  RUE LADY ADA LOVELACE Bureau Vente 34000 MONTPELLIER  RUE LADY ADA LOVELACE Bureau Vente 34000 MONTPELLIER  RUE LADY ADA LOVELACE Bureau Vente 34000 MONTPELLIER  RUE LADY ADA LOVELACE Bureau Vente 34000 MONTPELLIER  RUE LADY ADA LOVELACE Bureau Vente 34000 MONTPELLIER  RUE LADY ADA LOVELACE Bureau Vente 34000 MONTPELLIER  RUE LADY ADA LOVELACE

Ce bien vous intéresse ?

Afficher le numéro

Description Aménagements Surfaces Localisation Energies Infos Marché

Description

Annonce mise à jour le 11/12/2025

CBRE vous propose à la location des bureaux classés ERP 4 - pouvant être occupés par une école ou des bureaux classiques , au cœur du quartier en plein développement Cambacérès.
Au cœur d’un véritable hub urbain, entre le centre de ville et les plages de la Méditerranée, à proximité immédiate de l’Aéroport et de la Gare TGV Sud de France, la Halle Nova bénéficiera également de sa proximité avec le pôle Odysseum, les entreprises du Millénaire.
Accessible en voituré, par le tram, par piste cyclable, ce nouvel ensemble immobilier dont une partie dédiée à l’enseignement, sera adossé au parc de la Mogère véritable poumon vert offrant ainsi un cadre verdoyant et qualitatif

Idéalement située au sud de la métropole montpelliéraine, la Halle Nova propose de futurs bureaux entre le cœur de ville et les plages de la Méditerranée dans un nouveau quartier entièrement dédié aux activités tertiaires et à l’innovation. Le bâtiment labellisé jouira également d’une belle visibilité depuis l’autoroute, de nombreuses p...

Aménagements

Sols Revêtement de sol textile en dalles 50x50 cm.

Murs Revêtement mural de type peinture lisse blanche sur les parois béton ou plâtre Plafonds
Plafond suspendu en éléments modulaires 60 cm x 60 cm,
thermostat d’ambiance
Câblage
Accueil
Contrôle d’accès
Ascenseur

. Etat : Neuf

Caractéristiques :

  • Accueil / Conciergerie
  • Contrôle d'accès
  • Ascenseur

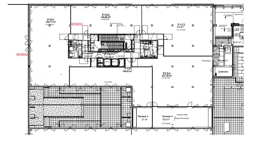
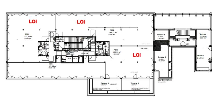
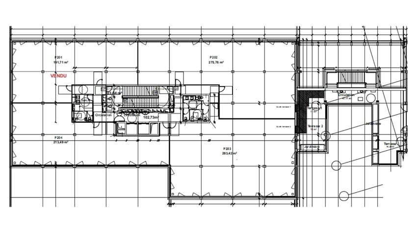
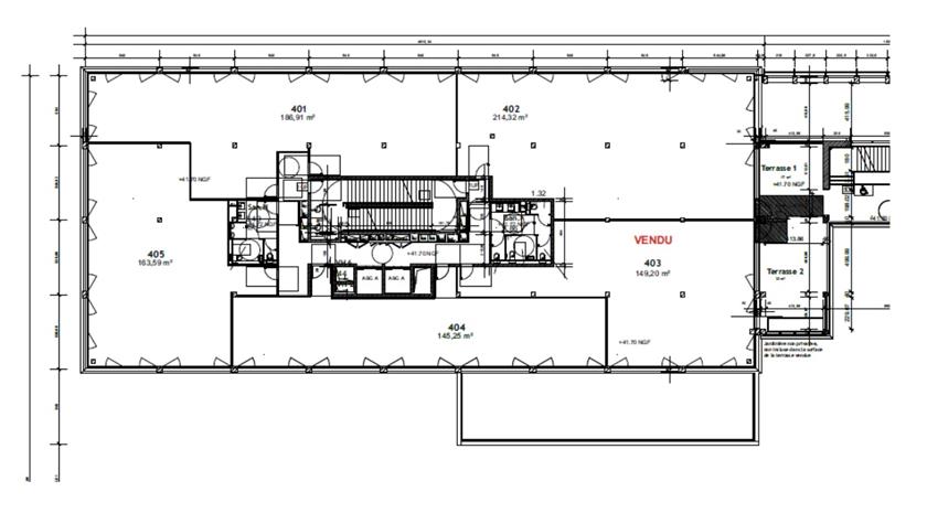
Surfaces

BâtimentLotEtageNatureSurface (m²)DisponibilitéPrix de vente
AP103R1Bureaux246Décembre 2026Nous contacter
AP104R1Bureaux262Décembre 2026Nous contacter
AP2022ème étageBureaux318Décembre 2026Nous contacter
AP2032ème étageBureaux326Décembre 2026Nous contacter
AP2042ème étageBureaux246Décembre 2026Nous contacter
AP3023ème étageBureaux340Décembre 2026Nous contacter
AP4024ème étageBureaux247Décembre 2026Nous contacter
AP4044ème étageBureaux168Décembre 2026Nous contacter
Total bâtiment   2 153  

Localisation

Localisation
HALLE NOVA, RUE LADY ADA LOVELACE 34000 MONTPELLIER
Facilités
Ligne 1 fin 2025 - arrêt à 5 minutes à pied
A709 à 8 minutes (2.8 km)
TGV Sud de France à 2 minutes (450 m)

Energies

DPE

Diagnostic de performance énergétique

Informations sur le Marché

Prix : A partir de 3 160 € m² HD
2 153 m²
Divisibilité min. 168 m²
A partir de 3 160 € m² HD
 
2 153 m²
Divisibilité min. 168 m²
A partir de 3 160 € m² HD
Contact

Votre contact

Valérie ASTRUC

À l'envoi, vous acceptez nos CGU
Envie de faciliter votre recherche ? Créer un compte
Vos favoris

Les offres ajoutées en favori seront perdues en fin de session. Pour conserver vos données et bénéficier d'autres avantages, nous vous invitons à vous identifier ou à créer un compte CBRE.

Aucun élément trouvé.
Loading...