Vente bureau GRADIGNAN - 210 m²

Localisation2 RUE DE POUMEY 33170 GRADIGNAN Voir sur Street View
Planifier une visitePlanifier une visite
Bureau Vente 33170 GRADIGNAN 2 RUE DE POUMEY
Disponibilité 6 mois ap. acc.
Bureau Vente 33170 GRADIGNAN 2 RUE DE POUMEY Bureau Vente 33170 GRADIGNAN 2 RUE DE POUMEY Bureau Vente 33170 GRADIGNAN 2 RUE DE POUMEY Bureau Vente 33170 GRADIGNAN 2 RUE DE POUMEY

Ce bien vous intéresse ?

Afficher le numéro

Description Aménagements Surfaces Localisation Energies Infos Marché

Description

Annonce mise à jour le 05/02/2026

Idéalement situé rue de Poumey à Gradignan, cet immeuble indépendant de 210 m² fait actuellement l’objet d’une rénovation complète, offrant une opportunité rare sur le secteur. Le bâtiment sera disponible après travaux, livré pré-cloisonné, avec les fluides en attente, permettant un aménagement intérieur sur mesure pour une utilisation bureaux. L’ensemble bénéficiera de prestations modernes dans un immeuble entièrement rénové, alliant fonctionnalité et qualité.

- Immeuble indépendant
- Surface : 210 m²
- Livraison après travaux
- Pré-cloisonnement réalisé
- Fluides en attente – aménagement bureaux
- Rénovation complète
- Emplacement recherché à Gradignan

Un bien idéal pour une entreprise souhaitant s’installer dans un environnement calme et accessible, tout en profitant d’un immeuble rénové et adaptable à ses besoins.

Aménagements

. Etat : Ancien

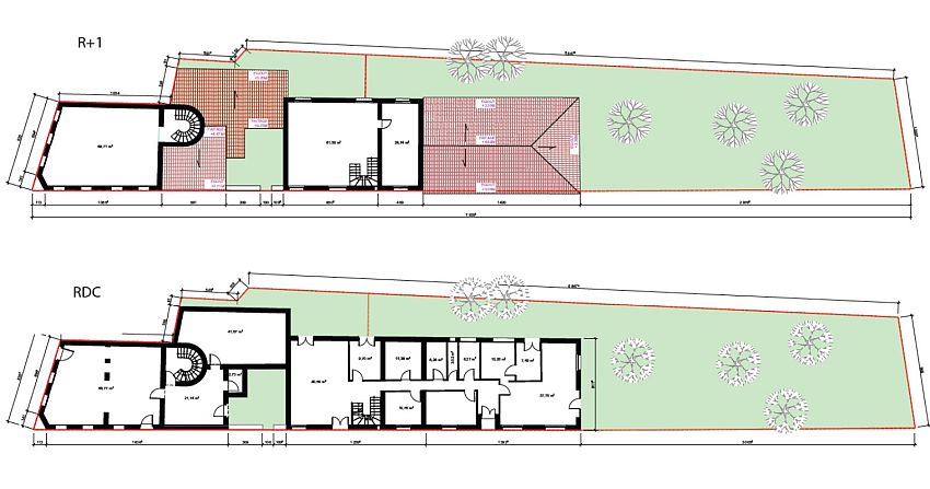
Surfaces

EtageNatureSurface (m²)DisponibilitéPrix de vente
1er étageBureaux906 mois ap. acc.Nous contacter
Rez-de-chausséeBureaux1206 mois ap. acc.Nous contacter
Total bâtiment 210  

Localisation

Localisation
2 RUE DE POUMEY 33170 GRADIGNAN
Facilités
Ligne 39 - Arrêt "Prieuré de Cayac"
A63 à 4km
Bordeaux Saint-Jean à 9,7km

Energies

DPE

Diagnostic de performance énergétique

Informations sur le Marché

Prix : 2 714 € m² HD
210 m²
Non divisible
2 714 € m² HD
 
210 m²
Non divisible
2 714 € m² HD
Anna LELUC

Votre contact

Anna LELUC

À l'envoi, vous acceptez nos CGU
Envie de faciliter votre recherche ? Créer un compte

Annonces similaires

Vos favoris

Les offres ajoutées en favori seront perdues en fin de session. Pour conserver vos données et bénéficier d'autres avantages, nous vous invitons à vous identifier ou à créer un compte CBRE.

Aucun élément trouvé.
Loading...