Location local d'activités BEZONS - 2 361 m²

Localisation95870 BEZONS
Planifier une visitePlanifier une visite
Local d'activités Location 95870 BEZONS
Disponibilité Immédiate
Local d'activités Location 95870 BEZONS Local d'activités Location 95870 BEZONS Local d'activités Location 95870 BEZONS Local d'activités Location 95870 BEZONS Local d'activités Location 95870 BEZONS Local d'activités Location 95870 BEZONS Local d'activités Location 95870 BEZONS Local d'activités Location 95870 BEZONS Local d'activités Location 95870 BEZONS Local d'activités Location 95870 BEZONS Local d'activités Location 95870 BEZONS Local d'activités Location 95870 BEZONS

Ce bien vous intéresse ?

Afficher le numéro

Description Aménagements Surfaces Localisation Energies Infos Marché

Description

Annonce mise à jour le 22/09/2025

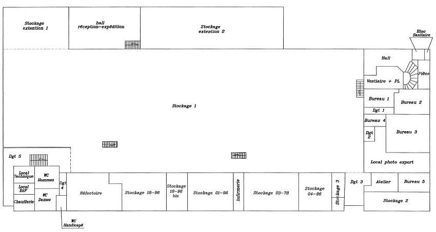
CBRE vous propose à la location sur la commune de Bezons dans le département du Val d'Oise (95), un site indépendant d'environ 2 500 m² sur un terrain de 3 800 m². Situé en plein cœur de la zone industrielle. A proximité des autoroutes. Le local dispose d'un tarif jaune, et de nombreuses places de parking (environ 51 places). IDÉAL POUR UN SIÈGE SOCIAL. Disponibilité immédiate.

Si cet entrepôt/local d’activités à louer dans le 95 vous intéresse ou si vous souhaitez obtenir plus de renseignements, n'hésitez pas à me contacter aujourd'hui pour organiser une visite et bénéficier de toutes les informations nécessaires pour votre projet immobilier.
En tant qu'expert en immobilier professionnel/industriel, je suis à votre disposition pour vous aider à trouver le bien adapté à vos activités professionnelles et à votre coeur de métier.

Aménagements


Construction :
Surface Terrain : 3692 m²
Ossature : Métallique       
Haut. libre max. ss poutre : 5.5 m
Résistance Sol : 2 T/m²

Aménagements :
. Tarif jaune (90 kVA)
. 51 places parking
. Cour camion de 21 m
. Site clos et indépendant
. 988 m² de bureaux
. Eclairage LED
. Etat : Ancien
Nbre de portes plain pied : 4

Equipement :
Nature du Chauffage : Aérotherme

Caractéristiques :

  • Terrain
  • Portes de plain-pied
  • Chauffage
  • Prestations locaux activité / entrepôt
  • Hauteur libre
  • Structure / Couverture
  • Parking

Surfaces

EtageNatureSurface (m²)DisponibilitéLoyerCharges locataire
1er étageBureaux988Immédiate144 €/m²/an HT HC08 €/HT/m²/an
Rez-de-chausséeActivités1 357Immédiate144 €/m²/an HT HC08 €/HT/m²/an
Locaux techniques16Immédiate144 €/m²/an HT HC08 €/HT/m²/an
Total bâtiment 2 361   

Localisation

Localisation
95870 BEZONS
Facilités
Houilles-Carrières sur Seine (lignes J, L)
Houilles-Carrières sur Seine (A)
T2, station "Pont de Bezons"
A86 - A14-A15-A1
Quais de Seine (Pont de Bezons), N192
262-272-367

Energies

DPE

Diagnostic de performance énergétique

Informations sur le Marché

Loyer : 144 € /m²/an HT HC

Prix des Entrepôts/Locaux d'activités à louer Bezons

État du bien

Loyer bas

Loyer haut

Neuf/Restructuré
90 €/m² HT HC par an
140 €/m² HT HC par an
Rénové
Non spécifié 
Non spécifié 
État d'usage
70 €/m² HT HC par an
120 €/m² HT HC par an
105
€/m² HT HC par an

en moyenne

Les fourchettes correspondent à des loyers stipulés dans les baux (hors RIE, hors parking).

Cette valeur n’est pas exhaustive et ne saurait en rien remplacer l’avis d’un expert pour un bien spécifique.

2 361 m²
Non divisible
144 € /m²/an HT HC
 
2 361 m²
Non divisible
144 € /m²/an HT HC
Thibault PELVET

Votre contact

Thibault PELVET

À l'envoi, vous acceptez nos CGU
Envie de faciliter votre recherche ? Créer un compte

Annonces similaires

Vos favoris

Les offres ajoutées en favori seront perdues en fin de session. Pour conserver vos données et bénéficier d'autres avantages, nous vous invitons à vous identifier ou à créer un compte CBRE.

Aucun élément trouvé.
Loading...