Location local d'activités COURBEVOIE - 370 m²

Localisation92400 COURBEVOIE
Planifier une visitePlanifier une visite
Local d'activités Location 92400 COURBEVOIE
Disponibilité Immédiate
Local d'activités Location 92400 COURBEVOIE Local d'activités Location 92400 COURBEVOIE Local d'activités Location 92400 COURBEVOIE Local d'activités Location 92400 COURBEVOIE Local d'activités Location 92400 COURBEVOIE Local d'activités Location 92400 COURBEVOIE Local d'activités Location 92400 COURBEVOIE Local d'activités Location 92400 COURBEVOIE Local d'activités Location 92400 COURBEVOIE Local d'activités Location 92400 COURBEVOIE

Ce bien vous intéresse ?

Afficher le numéro

Description Aménagements Surfaces Localisation Energies Infos Marché

Description

Annonce mise à jour le 23/06/2025

CBRE vous propose à louer, un local d’activités rénové situé sur la commune de Courbevoie dans le département des Hauts-de-Seine (92). À proximité des autoroutes A14, A86 et sur la ligne J du transilien d'Ile-de-France. Ce local dispose d’une porte sectionnelle, d’une grande hauteur et de places de parking. Belle surface de 370 m² non divisibles. Location entrepôt idéal pour le développement de vos activités professionnelles. Bail commercial. Disponible immédiatement.

Si cet entrepôt/local d’activités à louer dans le 92 vous intéresse ou si vous souhaitez obtenir plus de renseignements, n'hésitez pas à me contacter aujourd'hui pour organiser une visite et bénéficier de toutes les informations nécessaires pour votre projet immobilier.

En tant qu'expert en immobilier professionnel/industriel, je suis à votre disposition pour vous aider à trouver le bien adapté à vos activités professionnelles et à votre cœur de métier.

Aménagements


Construction :
Haut. libre max. ss poutre : 5 m
Résistance Sol : 3 T/m²

Aménagements :
. WC
. Douche
. Cuisine
. Câblage informatique
. Baie de brassage
. Carrelage ultra résistant dans actis
. Moquette dans bureaux
. Bureaux en très bon état d'usage
. Bonne charge au sol
. Cour privative 50 m² pour déchargement ou parking
. Parking extérieur
. Etat : Ancien
Accès : . Accès piéton
Nbre de portes plain pied : 1

Equipement :
Nature du Chauffage : Aérotherme

Caractéristiques :

  • Hauteur libre
  • Portes de plain-pied
  • Chauffage
  • Bureaux
  • Parking
  • Prestations locaux activité / entrepôt

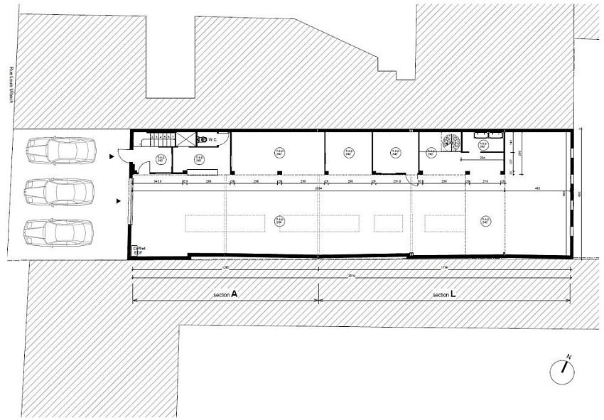
Surfaces

CelluleEtageNatureSurface (m²)DisponibilitéLoyer
11er étageBureaux100Immédiate200 €/m²/an HT HC
1Rez-de-chausséeActivités270Immédiate200 €/m²/an HT HC
Total bâtiment  370  

Localisation

Localisation
92400 COURBEVOIE
Facilités
Bois Colombes (J), Bécon les Bruyères (L)
Bécon-les-Bruyères (L15 Horizon 2030)
A14, A86
N13

Energies

DPE

Diagnostic de performance énergétique

Informations sur le Marché

Loyer : 200 € /m²/an HT HC

Prix des Entrepôts/Locaux d'activités à louer Courbevoie

État du bien

Loyer bas

Loyer haut

Neuf/Restructuré
140 €/m² HT HC par an
180 €/m² HT HC par an
Rénové
Non spécifié 
Non spécifié 
État d'usage
120 €/m² HT HC par an
170 €/m² HT HC par an
153
€/m² HT HC par an

en moyenne

Les fourchettes correspondent à des loyers stipulés dans les baux (hors RIE, hors parking).

Cette valeur n’est pas exhaustive et ne saurait en rien remplacer l’avis d’un expert pour un bien spécifique.

370 m²
Non divisible
200 € /m²/an HT HC
 
370 m²
Non divisible
200 € /m²/an HT HC
Maxime MERIAN

Votre contact

Maxime MERIAN

À l'envoi, vous acceptez nos CGU
Envie de faciliter votre recherche ? Créer un compte

Annonces similaires

Vos favoris

Les offres ajoutées en favori seront perdues en fin de session. Pour conserver vos données et bénéficier d'autres avantages, nous vous invitons à vous identifier ou à créer un compte CBRE.

Aucun élément trouvé.
Loading...