Location bureau ROUBAIX - 8 940 m²

Localisation59100 ROUBAIX
Planifier une visitePlanifier une visite
Bureau Location 59100 ROUBAIX
Disponibilité Immédiate
Bureau Location 59100 ROUBAIX Bureau Location 59100 ROUBAIX Bureau Location 59100 ROUBAIX Bureau Location 59100 ROUBAIX Bureau Location 59100 ROUBAIX Bureau Location 59100 ROUBAIX Bureau Location 59100 ROUBAIX Bureau Location 59100 ROUBAIX Bureau Location 59100 ROUBAIX Bureau Location 59100 ROUBAIX Bureau Location 59100 ROUBAIX Bureau Location 59100 ROUBAIX Bureau Location 59100 ROUBAIX Bureau Location 59100 ROUBAIX Bureau Location 59100 ROUBAIX Bureau Location 59100 ROUBAIX Bureau Location 59100 ROUBAIX

Ce bien vous intéresse ?

Afficher le numéro

Description Aménagements Surfaces Localisation Energies Infos Marché

Description

Annonce mise à jour le 11/03/2026

CBRE vous propose à la location et à proximité du centre ville de Roubaix, plusieurs plateaux de bureaux d'environ 1 500 m² par niveaux. Bénéficiez des avantages locatifs de ces surfaces dans un immeuble ERP et proche des commodités et de la station de Tramway Alfred Mongy !

Possibilité d'avoir des places de parking se situant au sous-sol. Nous vous conseillons vivement de le découvrir.

Aménagements

. Flexibilité d'agencement
. Interphone
. Contrôle d'accès
. Chauffage individuel électrique
. Goulotte périphérique ou boîtier de sol
. 4 ascenseurs

. ERP 2ème catégorie

Parkings :
. En sous-sol : 600 €HT/U/an
. Chez Mc Arthur Glen: 320 € HT/U/an

. Etat : Récent

Caractéristiques :

  • Espaces flexibles
  • Ascenseur
  • Parkings
  • Contrôle d'accès
  • ERP

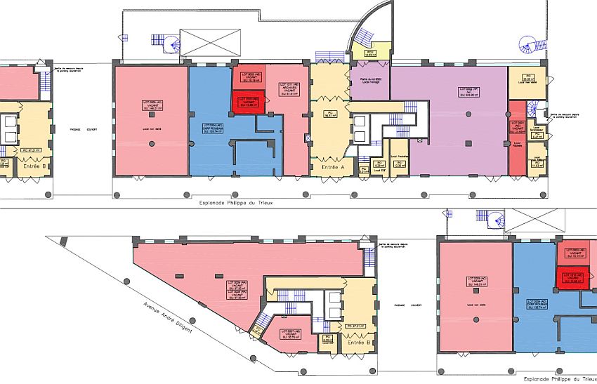
Surfaces

BâtimentLotEtageNatureSurface (m²)DisponibilitéLoyerCharges locataire
A0111 (BH)1er étageBureaux416Immédiate105 €/m²/an HT HC24 €/m²/an HT
A0201 (CH)2ème étageBureaux15Immédiate105 €/m²/an HT HC24 €/m²/an HT
A0202 (CD)2ème étageBureaux34Immédiate105 €/m²/an HT HC24 €/m²/an HT
A0205 (CC)2ème étageBureaux244Immédiate105 €/m²/an HT HC24 €/m²/an HT
A0207 (CE)2ème étageBureaux129Immédiate105 €/m²/an HT HC24 €/m²/an HT
A0208 (CF)2ème étageBureaux104Immédiate105 €/m²/an HT HC24 €/m²/an HT
A0209 (CG)2ème étageBureaux118Immédiate105 €/m²/an HT HC24 €/m²/an HT
A0211 (CB)2ème étageBureaux307Immédiate105 €/m²/an HT HC24 €/m²/an HT
A0410 (EF)4ème étageBureaux1 146Immédiate105 €/m²/an HT HC24 €/m²/an HT
A0501 (FA)5ème étageBureaux1 765Immédiate105 €/m²/an HT HC24 €/m²/an HT
A0601 (GA)6ème étageBureaux1 765Immédiate105 €/m²/an HT HC24 €/m²/an HT
A0704 (HA)7ème étageBureaux828Immédiate105 €/m²/an HT HC24 €/m²/an HT
Total bâtiment   1 416   
Total bâtiment   5 454   
BâtimentLotEtageNatureSurface (m²)DisponibilitéLoyerCharges locataire
A0111 (BH)1er étageBureaux416Immédiate105 €/m²/an HT HC24 €/m²/an HT
A0201 (CH)2ème étageBureaux15Immédiate105 €/m²/an HT HC24 €/m²/an HT
A0202 (CD)2ème étageBureaux34Immédiate105 €/m²/an HT HC24 €/m²/an HT
A0205 (CC)2ème étageBureaux244Immédiate105 €/m²/an HT HC24 €/m²/an HT
A0207 (CE)2ème étageBureaux129Immédiate105 €/m²/an HT HC24 €/m²/an HT
A0208 (CF)2ème étageBureaux104Immédiate105 €/m²/an HT HC24 €/m²/an HT
A0209 (CG)2ème étageBureaux118Immédiate105 €/m²/an HT HC24 €/m²/an HT
A0211 (CB)2ème étageBureaux307Immédiate105 €/m²/an HT HC24 €/m²/an HT
A0410 (EF)4ème étageBureaux1 146Immédiate105 €/m²/an HT HC24 €/m²/an HT
A0501 (FA)5ème étageBureaux1 765Immédiate105 €/m²/an HT HC24 €/m²/an HT
A0601 (GA)6ème étageBureaux1 765Immédiate105 €/m²/an HT HC24 €/m²/an HT
A0704 (HA)7ème étageBureaux828Immédiate105 €/m²/an HT HC24 €/m²/an HT
Total bâtiment   1 416   
Total bâtiment   5 454   
BâtimentLotEtageNatureSurface (m²)DisponibilitéLoyerCharges locataire
B0102 (BB)1er étageBureaux15Immédiate105 €/m²/an HT HC24 €/m²/an HT
B0103 (BD)1er étageBureaux14Immédiate105 €/m²/an HT HC24 €/m²/an HT
B0107 (BC)1er étageBureaux30Immédiate105 €/m²/an HT HC24 €/m²/an HT
B0109 (BL)1er étageBureaux175Immédiate105 €/m²/an HT HC24 €/m²/an HT
B0110 (BN)1er étageBureaux55Immédiate105 €/m²/an HT HC24 €/m²/an HT
B0112 (BM)1er étageBureaux169Immédiate105 €/m²/an HT HC24 €/m²/an HT
B0115 (BK)1er étageBureaux40Immédiate105 €/m²/an HT HC24 €/m²/an HT
B0116 (BE)1er étageBureaux15Immédiate105 €/m²/an HT HC24 €/m²/an HT
B0119 (BA)1er étageBureaux56Immédiate105 €/m²/an HT HC24 €/m²/an HT
B0120 (BA)1er étageBureaux119Immédiate105 €/m²/an HT HC24 €/m²/an HT
B0401 (EC)4ème étageBureaux62Immédiate105 €/m²/an HT HC24 €/m²/an HT
B0404 (ED)4ème étageBureaux31Immédiate105 €/m²/an HT HC24 €/m²/an HT
B0409 (EA)4ème étageBureaux64Immédiate105 €/m²/an HT HC24 €/HT/m²/an
B0411 (EB)4ème étageBureaux366Immédiate105 €/m²/an HT HC24 €/HT/m²/an
B0901 (ZA)Sous-solBureaux434Immédiate55 €/m²/an HT HC24 €/m²/an HT
B2 (AF)Rez-de-chausséeBureaux196Immédiate105 €/m²/an HT HC24 €/m²/an HT
B6 (AA)Rez-de-chausséeBureaux197Immédiate105 €/m²/an HT HC24 €/m²/an HT
B7 (AB)Rez-de-chausséeBureaux31Immédiate105 €/m²/an HT HC24 €/m²/an HT
Total bâtiment   220   
Total bâtiment   1 849   
BâtimentLotEtageNatureSurface (m²)DisponibilitéLoyerCharges locataire
B0102 (BB)1er étageBureaux15Immédiate105 €/m²/an HT HC24 €/m²/an HT
B0103 (BD)1er étageBureaux14Immédiate105 €/m²/an HT HC24 €/m²/an HT
B0107 (BC)1er étageBureaux30Immédiate105 €/m²/an HT HC24 €/m²/an HT
B0109 (BL)1er étageBureaux175Immédiate105 €/m²/an HT HC24 €/m²/an HT
B0110 (BN)1er étageBureaux55Immédiate105 €/m²/an HT HC24 €/m²/an HT
B0112 (BM)1er étageBureaux169Immédiate105 €/m²/an HT HC24 €/m²/an HT
B0115 (BK)1er étageBureaux40Immédiate105 €/m²/an HT HC24 €/m²/an HT
B0116 (BE)1er étageBureaux15Immédiate105 €/m²/an HT HC24 €/m²/an HT
B0119 (BA)1er étageBureaux56Immédiate105 €/m²/an HT HC24 €/m²/an HT
B0120 (BA)1er étageBureaux119Immédiate105 €/m²/an HT HC24 €/m²/an HT
B0401 (EC)4ème étageBureaux62Immédiate105 €/m²/an HT HC24 €/m²/an HT
B0404 (ED)4ème étageBureaux31Immédiate105 €/m²/an HT HC24 €/m²/an HT
B0409 (EA)4ème étageBureaux64Immédiate105 €/m²/an HT HC24 €/HT/m²/an
B0411 (EB)4ème étageBureaux366Immédiate105 €/m²/an HT HC24 €/HT/m²/an
B0901 (ZA)Sous-solBureaux434Immédiate55 €/m²/an HT HC24 €/m²/an HT
B2 (AF)Rez-de-chausséeBureaux196Immédiate105 €/m²/an HT HC24 €/m²/an HT
B6 (AA)Rez-de-chausséeBureaux197Immédiate105 €/m²/an HT HC24 €/m²/an HT
B7 (AB)Rez-de-chausséeBureaux31Immédiate105 €/m²/an HT HC24 €/m²/an HT
Total bâtiment   220   
Total bâtiment   1 849   
Total général : 8939,9 m²

Localisation

Localisation
59100 ROUBAIX
Facilités
. Métro ligne 2 : Station "Grand'Place"
. Bus : Terminus
. Tramway : Arrêt "Alfred Mongy"
. Route : Accès rapide aux grands boulevards
. 10mn de la gare de Lille

Energies

DPE

Diagnostic de performance énergétique

Informations sur le Marché

Loyer : A partir de 55 € m²/an HT HC
8 940 m²
Divisibilité min. 14 m²
A partir de 55 € m²/an HT HC
 
8 940 m²
Divisibilité min. 14 m²
A partir de 55 € m²/an HT HC
Louise RENAULT

Votre contact

Louise RENAULT

À l'envoi, vous acceptez nos CGU
Envie de faciliter votre recherche ? Créer un compte
Vos favoris

Les offres ajoutées en favori seront perdues en fin de session. Pour conserver vos données et bénéficier d'autres avantages, nous vous invitons à vous identifier ou à créer un compte CBRE.

Aucun élément trouvé.
Loading...