DXProgram est un outil qui permet d'estimer rapidement les surfaces nécessaires pour votre projet immobilier.
Tous les bureaux à louer
Tous les bureaux à vendre
Confier mon bien
Tous les coworking
Toutes les autres offres avec Néo-Nomade
Tous les entrepôts à louer
Tous les entrepôts à vendre
Tous les commerces à louer
Tous les commerces à vendre
Tous les commerces à céder
Aucun élément trouvé.
Ce bien vous intéresse ?
Afficher le numéro
Autres : Locaux d'activités à louer Jonage, Meyzieu, Pusignan / Locaux d'activités à louer Rhône / Locaux d'activités à louer Rhône-Alpes
Proches : Chassieu / Decines-Charpieu / Genas
Annonce mise à jour le 24/11/2025
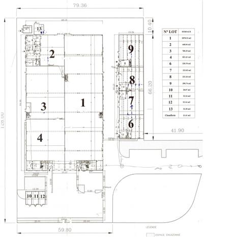
CBRE Lyon vous propose de visiter ce local d'activités, disponible immédiatement sur la commune de MEYZIEU. Cette cellule de 310 m² est proposée à la location et dispose de bureaux d'accompagnement. Idéale pour les métiers de l'artisanat ou petit stockage. Le bien se situe à 5 minutes de l'autoroute A432 et de la départementale D302. Cette surface de stockage est également desservie par les transports en commun TCL et le tram T3, station Meyzieu ZI.
Aménagements :. Etat : Ancien
Caractéristiques :
DPE
Votre contact
Joshua GUILLAUDIN
Location local d'activités ST PRIEST
Disponibilité : 12 mois ap. déb. trx
Location local d'activités VAULX EN VELIN
Disponibilité : Selon les lots
Location local d'activités DARDILLY
Disponibilité : Immédiate
Location local d'activités ST LAURENT DE MURE
Location local d'activités FLEURIEU SUR SAONE
Location local d'activités CHASSIEU
Location local d'activités VENISSIEUX
Location local d'activités ST GENIS LAVAL
Vente/Location local d'activités BRON
Location local d'activités MEYZIEU
Vous pouvez indiquer plusieurs adresses e-mail séparées par des virgules
En cliquant sur le bouton, vous acceptez que les informations ci-dessus soient enregistrées par CBRE
Les offres ajoutées en favori seront perdues en fin de session. Pour conserver vos données et bénéficier d'autres avantages, nous vous invitons à vous identifier ou à créer un compte CBRE.