Tous les bureaux à louer
Tous les bureaux à vendre
Confier mon bien
Tous les coworking
Toutes les autres offres avec Néo-Nomade
Tous les entrepôts à louer
Tous les entrepôts à vendre
Tous les commerces à louer
Tous les commerces à vendre
Tous les commerces à céder
Aucun élément trouvé.
Ce bien vous intéresse ?
Afficher le numéro
Autres : Locaux commerciaux à louer Gironde / Locaux commerciaux à louer Aquitaine
Annonce mise à jour le 26/11/2025
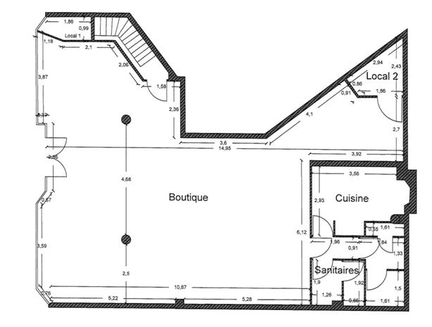
CBRE vous propose à la location un local commercial d’une superficie totale de 211 m² en plein cœur de Bordeaux Caudéran, idéalement situé sur l’avenue Louis Barthou, un axe commerçant bénéficiant d’une bonne visibilité et d’un important flux.Ce local en rez-de-chaussée offre de belles proportions et un espace intérieur modulable permettant d’accueillir efficacement diverses activités commerciales ou de services. Environnement immédiat : Quartier résidentiel dynamique, avec commerces de proximité et services (banques, restaurants, boutiques)
- Surface totale 211 m² (138 m² et sous sol de 73 m²)- Destination / Usage : commercial - Local en bon état- 2 places de parking- Bonne desserte automobile via les axes structurants du quartier. Etat : Récent
DPE
Votre contact
Sophie BONIOU
Location commerce BORDEAUX
Disponibilité : Immédiate
Disponibilité : Décembre 2025
Location commerce MERIGNAC
Location commerce VILLENAVE D'ORNON
Disponibilité : 01 Juillet 2025
Disponibilité : immédiate
Location commerce BIARRITZ
Location commerce LYON 6ème (69006)
Disponibilité : 12 mois ap. déb. trx
Location bureau PARIS 9ème (75009)
Disponibilité : Mars 2026
Location commerce BOURGOIN JALLIEU
Disponibilité : Avril 2026
Vente bureau HABSHEIM
Disponibilité : 1/10/2022
Location local d'activités MARTIN EGLISE
Vente bureau TARBES
Disponibilité : S2 2026
Disponibilité : 1 mois ap. acc.
Location bureau BORDEAUX
Disponibilité : 1T 2027
Vous pouvez indiquer plusieurs adresses e-mail séparées par des virgules
En cliquant sur le bouton, vous acceptez que les informations ci-dessus soient enregistrées par CBRE
Les offres ajoutées en favori seront perdues en fin de session. Pour conserver vos données et bénéficier d'autres avantages, nous vous invitons à vous identifier ou à créer un compte CBRE.