Location bureau PARIS 9ème (75009) - 420 m²

Localisation8 RUE LAMARTINE 75009 PARIS Voir sur Street View
Planifier une visitePlanifier une visite
Bureau Location 75009 PARIS 8 RUE LAMARTINE
Disponibilité Immédiate
Bureau Location 75009 PARIS 8 RUE LAMARTINE Bureau Location 75009 PARIS 8 RUE LAMARTINE Bureau Location 75009 PARIS 8 RUE LAMARTINE Bureau Location 75009 PARIS 8 RUE LAMARTINE Bureau Location 75009 PARIS 8 RUE LAMARTINE Bureau Location 75009 PARIS 8 RUE LAMARTINE Bureau Location 75009 PARIS 8 RUE LAMARTINE Bureau Location 75009 PARIS 8 RUE LAMARTINE Bureau Location 75009 PARIS 8 RUE LAMARTINE Bureau Location 75009 PARIS 8 RUE LAMARTINE Bureau Location 75009 PARIS 8 RUE LAMARTINE Bureau Location 75009 PARIS 8 RUE LAMARTINE Bureau Location 75009 PARIS 8 RUE LAMARTINE Bureau Location 75009 PARIS 8 RUE LAMARTINE Bureau Location 75009 PARIS 8 RUE LAMARTINE Bureau Location 75009 PARIS 8 RUE LAMARTINE

Ce bien vous intéresse ?

Afficher le numéro

Description Aménagements Surfaces Localisation Energies Infos Marché

Description

Annonce mise à jour le 19/03/2026

CBRE vous propose, au 8 rue Lamartine (75009), une surface ERP de 420 m² non divisibles disponible immédiatement. Situés sur une cour arborée calme proche de la rue des Martyrs, ces bureaux climatisés mêlent open space et salles de réunion avec patio et puits de lumière. Ce lieu unique offre une flexibilité totale et une accessibilité idéale via les lignes 7 et 12.

Si ce bureau à louer à Paris 9 vous intéresse ou si vous souhaitez obtenir plus d'informations, n'hésitez pas à me contacter aujourd'hui pour organiser une visite et bénéficier de toutes les informations nécessaires pour votre projet immobilier. En tant qu'expert en immobilier d’entreprise, je suis à votre disposition pour vous aider à trouver le bien disponible à la location, adapté à vos activités professionnelles et à votre cœur de métier.

Aménagements

PRESTATIONS IMMEUBLE :

. Locaux ERP
. Espace d'accueil
. Fibre optique

PRESTATIONS SURFACES :

. Locaux très calmes sur cour
. Mix open space - bureaux cloisonnés - mezzanines autour d'un patio central/terrasse
. 2 salles de réunion en sous-sol dont une éclairée par un large puit de lumière
. Coin cuisine
. Sanitaires dont 1 PMR
. Triple accès
. Flexibilité d'aménagement
. Climatisation réversible
. Etat : Ancien

Caractéristiques :

  • ERP
  • Accueil / Conciergerie
  • Cafétéria / cuisine
  • Accessibilité PMR
  • Espaces flexibles
  • Climatisation

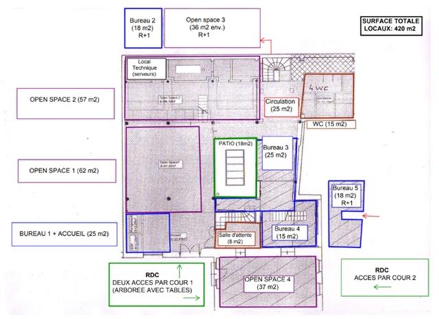
Surfaces

BâtimentEtageNatureSurface (m²)DisponibilitéLoyerCharges locataire
1Rez-de-chausséeBureaux358Immédiate500 €/m²/an HT HC28 €/m²/an HT
1Sous-solBureaux38Immédiate500 €/m²/an HT HC28 €/m²/an HT
1Sous-solBureaux24Immédiate500 €/m²/an HT HC28 €/m²/an HT
Total bâtiment  420   

Localisation

Localisation
8 RUE LAMARTINE 75009 PARIS
Facilités
[@logo3] Cadet (Ligne 7)
[@logo3] Notre-Dame de Lorette (Ligne 12)
[@logo5] Lignes 26, 32, 42, 43, 48, 85, 67 et 74

Energies

DPE

Diagnostic de performance énergétique

Informations sur le Marché

Loyer : 500 € /m²/an HT HC

Prix des Bureaux à louer Paris 09

État du bien

Loyer bas

Loyer haut

Neuf/Restructuré
650 €/m² HT HC par an
940 €/m² HT HC par an
Rénové
450 €/m² HT HC par an
850 €/m² HT HC par an
État d'usage
450 €/m² HT HC par an
750 €/m² HT HC par an
682
€/m² HT HC par an

en moyenne

Les fourchettes correspondent à des loyers stipulés dans les baux (hors RIE, hors parking).

Cette valeur n’est pas exhaustive et ne saurait en rien remplacer l’avis d’un expert pour un bien spécifique.

420 m²
Non divisible
500 € /m²/an HT HC
 
420 m²
Non divisible
500 € /m²/an HT HC
Sacha MARIE-GABRIELLE

Votre contact

Sacha MARIE-GABRIELLE

À l'envoi, vous acceptez nos CGU
Envie de faciliter votre recherche ? Créer un compte

Annonces similaires

Vos favoris

Les offres ajoutées en favori seront perdues en fin de session. Pour conserver vos données et bénéficier d'autres avantages, nous vous invitons à vous identifier ou à créer un compte CBRE.

Aucun élément trouvé.
Loading...