Location bureau PARIS 9ème (75009) - 872 m²

Localisation10 RUE DU FAUBOURG MONTMARTRE 75009 PARIS Voir sur Street View
Planifier une visitePlanifier une visite
Bureau Location 75009 PARIS 10 RUE DU FAUBOURG MONTMARTRE
Disponibilité Selon les lots
Bureau Location 75009 PARIS 10 RUE DU FAUBOURG MONTMARTRE Bureau Location 75009 PARIS 10 RUE DU FAUBOURG MONTMARTRE Bureau Location 75009 PARIS 10 RUE DU FAUBOURG MONTMARTRE Bureau Location 75009 PARIS 10 RUE DU FAUBOURG MONTMARTRE Bureau Location 75009 PARIS 10 RUE DU FAUBOURG MONTMARTRE Bureau Location 75009 PARIS 10 RUE DU FAUBOURG MONTMARTRE Bureau Location 75009 PARIS 10 RUE DU FAUBOURG MONTMARTRE Bureau Location 75009 PARIS 10 RUE DU FAUBOURG MONTMARTRE Bureau Location 75009 PARIS 10 RUE DU FAUBOURG MONTMARTRE Bureau Location 75009 PARIS 10 RUE DU FAUBOURG MONTMARTRE Bureau Location 75009 PARIS 10 RUE DU FAUBOURG MONTMARTRE Bureau Location 75009 PARIS 10 RUE DU FAUBOURG MONTMARTRE Bureau Location 75009 PARIS 10 RUE DU FAUBOURG MONTMARTRE Bureau Location 75009 PARIS 10 RUE DU FAUBOURG MONTMARTRE Bureau Location 75009 PARIS 10 RUE DU FAUBOURG MONTMARTRE Bureau Location 75009 PARIS 10 RUE DU FAUBOURG MONTMARTRE Bureau Location 75009 PARIS 10 RUE DU FAUBOURG MONTMARTRE

Ce bien vous intéresse ?

Afficher le numéro

Description Aménagements Surfaces Localisation Energies Infos Marché

Description

Annonce mise à jour le 27/04/2026

Si ce bureau à louer à Paris 9 vous intéresse ou si vous souhaitez obtenir plus d'informations, n'hésitez pas à me contacter aujourd'hui pour organiser une visite et bénéficier de toutes les informations nécessaires pour votre projet immobilier. En tant qu'expert en immobilier d’entreprise, je suis à votre disposition pour vous aider à trouver le bien disponible à la location, adapté à vos activités professionnelles et à votre cœur de métier.

Aménagements

PRESTATIONS IMMEUBLE :

. Accès sécurisé
. Hôtesse d’accueil
. Ascenseurs
. Parking
. Caves
. Cour immeuble extérieure aménagée

PRESTATIONS SURFACES :

. Climatisation
. Open space et espaces fermés
. Très peu de contraintes porteuses
. Espace cuisine
. 2 grandes terrasses privatives au 5eme étage

. Etat : Ancien

Caractéristiques :

  • Contrôle d'accès
  • Accueil / Conciergerie
  • Ascenseur
  • Parkings
  • Climatisation
  • Cafétéria / cuisine

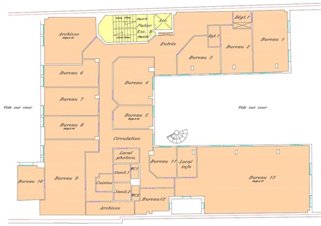
Surfaces

BâtimentEtageNatureSurface (m²)DisponibilitéLoyerCharges locataire
15ème étageBureaux238Immédiate690 €/m²/an HT HC56 €/HT/m²/an
14ème étageBureaux486Mai 2026640 €/m²/an HT HC56 €/HT/m²/an
1Rez-de-chausséeBureaux148Immédiate500 €/m²/an HT HC56 €/HT/m²/an
1Sous-solParkingsImmédiate1 800 €/place/an HT HC
Total bâtiment  872   

Localisation

Localisation
10 RUE DU FAUBOURG MONTMARTRE 75009 PARIS
Facilités
Grands Boulevards (Lignes 8 et 9)
Le Peletier (Ligne 7)

Auber (Ligne A)
Haussmann - Saint-Lazare (Ligne E)

Gare Saint-Lazare

Nombreuses lignes

Energies

DPE

Diagnostic de performance énergétique

Informations sur le Marché

Loyer : A partir de 500 € m²/an HT HC

Prix des Bureaux à louer Paris 09

État du bien

Loyer bas

Loyer haut

Neuf/Restructuré
650 €/m² HT HC par an
940 €/m² HT HC par an
Rénové
450 €/m² HT HC par an
850 €/m² HT HC par an
État d'usage
450 €/m² HT HC par an
750 €/m² HT HC par an
682
€/m² HT HC par an

en moyenne

Les fourchettes correspondent à des loyers stipulés dans les baux (hors RIE, hors parking).

Cette valeur n’est pas exhaustive et ne saurait en rien remplacer l’avis d’un expert pour un bien spécifique.

872 m²
Divisibilité min. 148 m²
A partir de 500 € m²/an HT HC
 
872 m²
Divisibilité min. 148 m²
A partir de 500 € m²/an HT HC
Charlotte FRAPARD

Votre contact

Charlotte FRAPARD

À l'envoi, vous acceptez nos CGU
Envie de faciliter votre recherche ? Créer un compte

Annonces similaires

Vos favoris

Les offres ajoutées en favori seront perdues en fin de session. Pour conserver vos données et bénéficier d'autres avantages, nous vous invitons à vous identifier ou à créer un compte CBRE.

Aucun élément trouvé.
Loading...