Location bureau LYON 3ème (69003) - 202 m²

LocalisationLE PATIO LUMIERE, 71-75 COURS ALBERT THOMAS 69003 LYON Voir sur Street View
Planifier une visitePlanifier une visite
Bureau Location 69003 LYON 71-75 COURS ALBERT THOMAS
Disponibilité Selon les lots
Bureau Location 69003 LYON 71-75 COURS ALBERT THOMAS Bureau Location 69003 LYON 71-75 COURS ALBERT THOMAS Bureau Location 69003 LYON 71-75 COURS ALBERT THOMAS Bureau Location 69003 LYON 71-75 COURS ALBERT THOMAS Bureau Location 69003 LYON 71-75 COURS ALBERT THOMAS Bureau Location 69003 LYON 71-75 COURS ALBERT THOMAS Bureau Location 69003 LYON 71-75 COURS ALBERT THOMAS

Ce bien vous intéresse ?

Afficher le numéro

Description Aménagements Surfaces Localisation Energies Infos Marché

Description

Annonce mise à jour le 06/11/2025

A louer bureaux à rénover en étage élevé avec très grande terrasse privative.

Le quartier Sans Souci à Lyon, bien que majoritairement résidentiel, présente une économie diversifiée. On y trouve un mélange de commerces de proximité, de services (santé, éducation) et de quelques activités tertiaires. L'attractivité du quartier pour les familles et les jeunes actifs influence positivement le dynamisme économique local, favorisant l'émergence de nouveaux commerces et la valorisation immobilière.

Aménagements

. Contrôle d'accès
. Ascenseur
. Bureaux cloisonnés mais possibilité livraison plateau nu
. Terrasses privatives pour chaque lot de 132 m²
. Faux plafond
. Climatisation
. Chauffage
. Câblage
. Travaux à prévoir

. 3 places de parkings en sous-sol
. Etat : Récent

Caractéristiques :

  • Contrôle d'accès
  • Ascenseur
  • Climatisation
  • Parkings

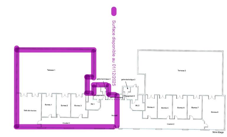
Surfaces

BâtimentLotEtageNatureSurface (m²)DisponibilitéLoyerCharges locataire
B55ème étageBureaux101Décembre 2025160 €/m²/an HT HC33 €/HT/m²/an
B55ème étageBureaux101Juillet 2025160 €/m²/an HT HC33 €/HT/m²/an
Total bâtiment   202   

Localisation

Localisation
LE PATIO LUMIERE, 71-75 COURS ALBERT THOMAS 69003 LYON
Facilités
cours Albert Thomas
Ligne D (Station Sans-Souci)
Bus : Ligne 69
Ligne T3 (Station Dauphiné Lacassagne)
. Vélo'v : "Institut Lumière" / "Albert Thomas / Villon"
Gare TGV Part-Dieu à 10 min

Energies

DPE

Diagnostic de performance énergétique

Informations sur le Marché

Loyer : 160 € /m²/an HT HC
202 m²
Divisibilité min. 101 m²
160 € /m²/an HT HC
 
202 m²
Divisibilité min. 101 m²
160 € /m²/an HT HC
Virginie THOMMEREL

Votre contact

Virginie THOMMEREL

À l'envoi, vous acceptez nos CGU
Envie de faciliter votre recherche ? Créer un compte

Annonces similaires

Vos favoris

Les offres ajoutées en favori seront perdues en fin de session. Pour conserver vos données et bénéficier d'autres avantages, nous vous invitons à vous identifier ou à créer un compte CBRE.

Aucun élément trouvé.
Loading...