Location bureau PREMESQUES - 2 188 m²

Localisation59840 PREMESQUES
Planifier une visitePlanifier une visite
Bureau Location 59840 PREMESQUES
Disponibilité 12 mois ap. déb. trx
Bureau Location 59840 PREMESQUES Bureau Location 59840 PREMESQUES Bureau Location 59840 PREMESQUES Bureau Location 59840 PREMESQUES Bureau Location 59840 PREMESQUES Bureau Location 59840 PREMESQUES Bureau Location 59840 PREMESQUES Bureau Location 59840 PREMESQUES

Ce bien vous intéresse ?

Afficher le numéro

Description Aménagements Surfaces Localisation Energies Infos Marché

Description

Annonce mise à jour le 27/01/2026

CBRE vous propose une adresse d’exception. Dans un cadre unique, au cœur d’un ancien site équestre métamorphosé en espaces de bureaux, offrez à vos équipes un environnement lumineux et inspirant. Un atrium central de 450 m², mis à disposition gratuitement, devient votre espace signature : showroom, réception ou lieu de convivialité. Avec une visibilité remarquable sur la route nationale, une accessibilité optimale (métro Saint-Philibert, grands axes), et la proximité immédiate de Lille, vous bénéficiez d’une localisation stratégique pour conjuguer prestige et performance.

La localisation est stratégique : à proximité des grands axes autoroutiers et à seulement huit minutes de la zone Auchan Englos, qui vous garantit un accès rapide à tous les services.

Aménagements

. Atrium central
. Ascenseur
. Climatisation réversible

. 35 places de parking extérieures :
Loyer : 350€ HT/U/an
. Etat : Restructuré

Caractéristiques :

  • Ascenseur
  • Climatisation
  • Parkings

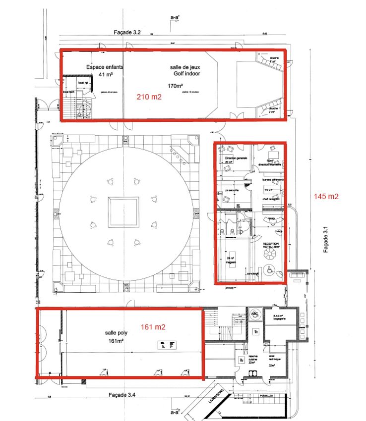
Surfaces

EtageNatureSurface (m²)DisponibilitéLoyer
1er étageBureaux1 16012 mois ap. déb. trx115 €/m²/an HT HC
Rez-de-chausséeBureaux50012 mois ap. déb. trx115 €/m²/an HT HC
Rez-de-chausséeUsage Mixte52812 mois ap. déb. trx45 €/m²/an HT HC
Total bâtiment 2 188  

Localisation

Localisation
59840 PREMESQUES
Facilités
A25/A1
arrêt : Vert feuillage
Linge 2 station : Saint Philibert
RN41

Energies

DPE

Diagnostic de performance énergétique

Informations sur le Marché

Loyer : 115 € /m²/an HT HC
2 188 m²
Divisibilité min. 1 660 m²
115 € /m²/an HT HC
 
2 188 m²
Divisibilité min. 1 660 m²
115 € /m²/an HT HC
Arthur HOCHART

Votre contact

Arthur HOCHART

À l'envoi, vous acceptez nos CGU
Envie de faciliter votre recherche ? Créer un compte

Annonces similaires

Vos favoris

Les offres ajoutées en favori seront perdues en fin de session. Pour conserver vos données et bénéficier d'autres avantages, nous vous invitons à vous identifier ou à créer un compte CBRE.

Aucun élément trouvé.
Loading...