Location bureau LA MADELEINE - 3 551 m²

Localisation59110 LA MADELEINE
Planifier une visitePlanifier une visite
Bureau Location 59110 LA MADELEINE
Disponibilité Décembre 2026
Bureau Location 59110 LA MADELEINE Bureau Location 59110 LA MADELEINE Bureau Location 59110 LA MADELEINE Bureau Location 59110 LA MADELEINE Bureau Location 59110 LA MADELEINE Bureau Location 59110 LA MADELEINE Bureau Location 59110 LA MADELEINE Bureau Location 59110 LA MADELEINE Bureau Location 59110 LA MADELEINE Bureau Location 59110 LA MADELEINE

Ce bien vous intéresse ?

Afficher le numéro

Description Aménagements Surfaces Localisation Energies Infos Marché

Description

Annonce mise à jour le 23/10/2025

Un emplacement de choix à EURALILLE, aux portes du centre-ville et à l'entrée des Grands Boulevards : découvrez un immeuble de bureaux haut de gamme au cœur d’un quartier dynamique et mixte, à proximité immédiate des commerces, restaurants, écoles, crèches et espaces verts emblématiques comme le Jardin de l’Europe et le Jardin des Géants. Chaque lot bénéficie d’un espace extérieur privatif (terrasse, loggia ou balcon) et de prestations premium.

Casiers colis, caves, double ascenseur, rooftop convivial, salle de sport avec vestiaires, et d’une grande flexibilité d’aménagement, du rez-de-chaussée ERP aux plateaux modulables du 2e au 6e étage.

Aménagements

. Chaque lot possède une terrasse loggia ou balcon privé
. Casiers colis
. Caves privatives
. Double ascenseur
. ETAGE TYPE – du 2ème au 6ème étage :
- Plateau de bureau de 581 m² divisés en 2 lots communicants d’environ 284 et 298 m², variable selon les niveaux (voir
tableau des surfaces)
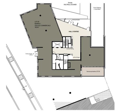
. Hall d’entrée en double hauteur avec zone
d’attente clientèle
. Haut standing de finition
. Local vélos et trottinettes
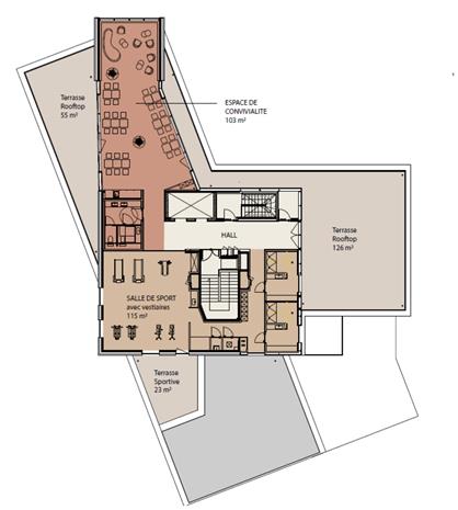
. Roof top : espace de convivialité en rooftop avec cuisine, espace lunch et détente ouverts sur plusieurs terrasses
. Rez-de-chaussée exploitable en bureaux ou commerce (ERP) de 362 m2 avec terrasse
privative de 30 m²
. Salle de sport avec vestiaires (douches + casiers) et terrasse sportive
. Terrasses

. Certification BREEAM Excellent

. Parking en sous-sol avec bornes de recharges pour véhicules électriques (env. 85 places dont 6 équipées IRVE) :
Loyer : 1 200€ HT/U/an

. Parties communes spéciales - espace de convivialité / lunch, salle de sport, vestiaires et douches, terrasses : 11 % des surfaces privatives.

. Honoraires de management technique : 4 % du loyer HT.
. Etat : Neuf

Caractéristiques :

  • Ascenseur
  • Local vélo
  • Terrasses / Rooftop
  • Certifications HQE

Surfaces

LotEtageNatureSurface (m²)DisponibilitéLoyerCharges locataire
0.0Rez-de-chausséeCommerce386Décembre 2026280 €/m²/an HT HC30 €/HT/m²/an
1.11er étageBureaux147Décembre 2026280 €/m²/an HT HC30 €/HT/m²/an
1.21er étageBureaux263Décembre 2026280 €/m²/an HT HC30 €/HT/m²/an
2.12ème étageBureaux292Décembre 2026280 €/m²/an HT HC30 €/HT/m²/an
2.22ème étageBureaux295Décembre 2026280 €/m²/an HT HC30 €/HT/m²/an
3.13ème étageBureaux260Décembre 2026280 €/m²/an HT HC30 €/HT/m²/an
3.23ème étageBureaux283Décembre 2026280 €/m²/an HT HC30 €/HT/m²/an
4.14ème étageBureaux255Décembre 2026280 €/m²/an HT HC30 €/HT/m²/an
4.24ème étageBureaux283Décembre 2026280 €/m²/an HT HC30 €/HT/m²/an
5.15ème étageBureaux264Décembre 2026280 €/m²/an HT HC30 €/HT/m²/an
5.25ème étageBureaux281Décembre 2026280 €/m²/an HT HC30 €/HT/m²/an
6.16ème étageBureaux268Décembre 2026280 €/m²/an HT HC30 €/HT/m²/an
6.26ème étageBureaux274Décembre 2026280 €/m²/an HT HC30 €/HT/m²/an
Total bâtiment  3 551   

Localisation

Localisation
59110 LA MADELEINE
Facilités
Lille Lesquin à 20 min
A1, A22, A23, A25, A27
Gare TER & TGV à 4 min
station : Romarin à 2 min
Station V'Lille

Energies

DPE

Diagnostic de performance énergétique

Informations sur le Marché

Loyer : 280 € /m²/an HT HC
3 551 m²
Divisibilité min. 147 m²
280 € /m²/an HT HC
 
3 551 m²
Divisibilité min. 147 m²
280 € /m²/an HT HC
Charles CHAPONNAY

Votre contact

Charles CHAPONNAY

À l'envoi, vous acceptez nos CGU
Envie de faciliter votre recherche ? Créer un compte

Annonces similaires

Vos favoris

Les offres ajoutées en favori seront perdues en fin de session. Pour conserver vos données et bénéficier d'autres avantages, nous vous invitons à vous identifier ou à créer un compte CBRE.

Aucun élément trouvé.
Loading...