Location bureau NICE - 779 m²

Localisation06200 NICE
Planifier une visitePlanifier une visite
Bureau Location 06200 NICE
Disponibilité Selon les lots
Bureau Location 06200 NICE Bureau Location 06200 NICE Bureau Location 06200 NICE Bureau Location 06200 NICE Bureau Location 06200 NICE Bureau Location 06200 NICE Bureau Location 06200 NICE Bureau Location 06200 NICE Bureau Location 06200 NICE Bureau Location 06200 NICE Bureau Location 06200 NICE Bureau Location 06200 NICE Bureau Location 06200 NICE Bureau Location 06200 NICE Bureau Location 06200 NICE Bureau Location 06200 NICE Bureau Location 06200 NICE Bureau Location 06200 NICE Bureau Location 06200 NICE Bureau Location 06200 NICE Bureau Location 06200 NICE Bureau Location 06200 NICE

Ce bien vous intéresse ?

Afficher le numéro

Description Aménagements Surfaces Localisation Energies Infos Marché

Description

Annonce mise à jour le 26/05/2026

NICE OUEST ARENAS (06200) - CBRE vous propose à la location des bureaux d'une surface de 779 m² répartis comme suit: 173 m² au RDC et 606 m² en R+1/R+2, d'un immeuble idéalement situé, face à la Promenade des Anglais et proche du quartier d'affaire de l'Arénas. Equipé, cloisonné et climatisé, ces bureaux à louer bénéficient de 24 places de parking à louer en sus ainsi qu''une réserve de 6 m².

Emplacement idéal: au pied du tramway, avec un accès direct véhicule devant la Promenade des Anglais. Parking public à proximité, proximité aéroport, gare TGC Nice St Augustin, autoroute A8, voie Mathis.

Si vous êtes intéressés par ces bureaux à louer à NICE OUEST ARENAS (06200) ou si vous souhaitez obtenir plus d'informations, n'hésitez pas à nous contacter pour planifier une visite et obtenir toutes les informations requises pour votre projet immobilier.

Aménagements

BUREAUX entièrement rénovés
. Deux ascenseurs / 2 escaliers
. Interphone/digicode
. ERP
. Orientation Est-Sud vue mer
. Entièrement rénové
. Espace cuisine aménagé privatif
. Sol souple, peinture, faux plafonds, dalles
. Eclairage LED
. Climatisation neuve (2023), CTA (2019)
. Compteur électrique indépendant
. Câblage informatique complet, raccordement fibre optique
. Cloisonnement actuel conservé, modulable selon les besoins
. Sanitaire privé (+ douche pour le lot R+1)
. Construction en mur-rideau isolé, avec double peau ventilée, conforme décret tertiaire 2030

En sus:
. 6 m² de réserve (100€/mois)
. 24 places de parking (plus: nous consulter, dont électriques)
. Etat : Ancien

Caractéristiques :

  • Ascenseur
  • ERP

Surfaces

LotEtageNatureSurface (m²)DisponibilitéLoyerCharges locataire
Sous-solParkingsImmédiate1 440 €/place/an HT HC
R+1/R+22ème étageBureaux266Septembre 2026190 €/m²/an HT HC40 €/HT/m²/an
R+1/R+21er étageBureaux340Septembre 2026190 €/m²/an HT HC40 €/HT/m²/an
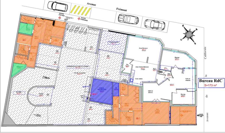
RDCRez-de-chausséeBureaux173Immédiate190 €/m²/an HT HC40 €/HT/m²/an
Total bâtiment  779   

Localisation

Localisation
06200 NICE
Facilités
Bus
Tramway
Autoroute A8
Aéroport international NICE Côte d'Azur
Promenade des Anglais

Energies

DPE

Diagnostic de performance énergétique

Informations sur le Marché

Loyer : 190 € /m²/an HT HC
779 m²
Divisibilité min. 173 m²
190 € /m²/an HT HC
 
779 m²
Divisibilité min. 173 m²
190 € /m²/an HT HC
Lewis BALABANIAN

Votre contact

Lewis BALABANIAN

À l'envoi, vous acceptez nos CGU
Envie de faciliter votre recherche ? Créer un compte
Vos favoris

Les offres ajoutées en favori seront perdues en fin de session. Pour conserver vos données et bénéficier d'autres avantages, nous vous invitons à vous identifier ou à créer un compte CBRE.

Aucun élément trouvé.
Loading...