Vente bureau CONCARNEAU - 190 m²

Localisation29900 CONCARNEAU
Planifier une visitePlanifier une visite
Bureau Vente 29900 CONCARNEAU
Disponibilité Immédiate
Bureau Vente 29900 CONCARNEAU Bureau Vente 29900 CONCARNEAU Bureau Vente 29900 CONCARNEAU Bureau Vente 29900 CONCARNEAU Bureau Vente 29900 CONCARNEAU

Ce bien vous intéresse ?

Afficher le numéro

Description Aménagements Surfaces Localisation Energies Infos Marché

Description

Annonce mise à jour le 12/03/2026

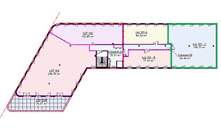
A VENDRE / ALOUER - CONCARNEAU ZONE DE COLGUEN - BUREAUX DE 190 M2 A Concarneau, au coeur de la zone de Colguen, dans un secteur dynamique en plein essor économique, dans un immeuble HQE (Haute Qualité Environnementale) neuf se répartissant sur trois niveaux, au premier étage, un plateau de bureaux de 190,77 m² (lot 101 C), livré brut de béton, fluides en attente. 13 places de parking extérieures privatives. Honoraires acquéreur 6%TTC du prix de vente HT net vendeur. Frais de notaire réduits. LOCATION : Loyer, nous consulter. Retrouvez toutes nos offres sur www.westim.fr et www.cbre.fr

Aménagements

Aucune information disponible

Surfaces

Aucune information disponible

Localisation

Energies

DPE

Diagnostic de performance énergétique

Informations sur le Marché

Prix : 409 918 € EUR
190 m²
Non divisible
409 918 € EUR
 
190 m²
Non divisible
409 918 € EUR
Contact

Votre contact

Sonia IBTATEN

À l'envoi, vous acceptez nos CGU
Envie de faciliter votre recherche ? Créer un compte
Vos favoris

Les offres ajoutées en favori seront perdues en fin de session. Pour conserver vos données et bénéficier d'autres avantages, nous vous invitons à vous identifier ou à créer un compte CBRE.

Aucun élément trouvé.
Loading...