DXProgram est un outil qui permet d'estimer rapidement les surfaces nécessaires pour votre projet immobilier.
Tous les bureaux à louer
Tous les bureaux à vendre
Confier mon bien
Tous les coworking
Toutes les autres offres avec Néo-Nomade
Tous les entrepôts à louer
Tous les entrepôts à vendre
Tous les commerces à louer
Tous les commerces à vendre
Tous les commerces à céder
Aucun élément trouvé.
Ce bien vous intéresse ?
Afficher le numéro
Autres : Bureaux à vendre Brest / Bureaux à vendre Finistère / Bureaux à vendre Bretagne
Annonce mise à jour le 01/04/2026
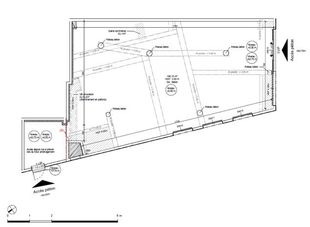
Brest, Centre-ville, à vendre, cellule professionnelle de 198 m². PROGRAMME NEUF 'ILOT CERDAN', proche commerces et restaurants. Au sein d'un ensemble immobilier mixte, bénéficiant d'une localisation stratégique, à proximité d'un arrêt de bus et du tramway et à quelques minutes de la gare SNCF, une cellule professionnelle d'une surface de 198 m² avec vitrines et 3 places de parking privatives. Immeuble accessible PMR. Règlementation RE2020. *Le prix du local brut est de 329 167 Euro HT + 16 666 Euro HT/place de stationnement *Le prix du local totalement aménagé, cloisonné, livré fini est de 574 166 Euro HT (compris 3 places de stationnement) Frais de notaire réduits Honoraires : 4%HT du prix de vente à la charge de l'acquéreur
DPE
Votre contact
Sonia IBTATEN
Vente bureau QUIMPER
Disponibilité : Immédiate
Vente bureau GUIPAVAS
Vente bureau BOHARS
Vente bureau BREST
Vente bureau LANDERNEAU
Vente local d'activités LES ULIS
Vous pouvez indiquer plusieurs adresses e-mail séparées par des virgules
En cliquant sur le bouton, vous acceptez que les informations ci-dessus soient enregistrées par CBRE
Les offres ajoutées en favori seront perdues en fin de session. Pour conserver vos données et bénéficier d'autres avantages, nous vous invitons à vous identifier ou à créer un compte CBRE.