Vente local d'activités BEZONS - 589 m²

Localisation95870 BEZONS
Planifier une visitePlanifier une visite
Local d'activités Vente 95870 BEZONS
Disponibilité Immédiate
Local d'activités Vente 95870 BEZONS Local d'activités Vente 95870 BEZONS Local d'activités Vente 95870 BEZONS Local d'activités Vente 95870 BEZONS Local d'activités Vente 95870 BEZONS Local d'activités Vente 95870 BEZONS

Ce bien vous intéresse ?

Afficher le numéro

Description Aménagements Surfaces Localisation Energies Infos Marché

Description

Annonce mise à jour le 14/10/2025

Rare sur le secteur ! CBRE vous propose à vendre , un local d’activités situé sur la commune de Bezons dans le département du Val d'Oise (95). A proximité des autoroutes A14 et A86, sur la ligne A du RER d'Ile-de-France. Ce local industriel dispose d’une cour privative, d'une belle hauteur sous plafond et de bureaux d’accompagnement. Belle surface de 589 m² non divisibles. Entrepôt en vente idéal pour le développement de vos activités professionnelles. Disponible immédiatement.

Mener à bien son projet d'implantation pour une activité industrielle doit passer par des locaux adaptés à ses besoins. Si cet entrepôt/local d’activités à vendre dans le 95 vous intéresse ou si vous souhaitez obtenir plus de renseignements, n'hésitez pas à me contacter aujourd'hui pour organiser une visite et bénéficier de toutes les informations nécessaires pour votre projet immobilier.

En tant qu'expert en immobilier industriel, je suis à votre disposition pour vous aider à trouver le bien disponible à la vente ou à la loc...

Aménagements

Aménagements :
. Surface parking : 200 m²
. Atelier avec ouverture de 8m de large sur 4m de haut
. Entièrement équipé de machines professionnelles
. Chauffage
. Alarme et barreaux aux fenêtres
. Vestiaire / WC
. Bureau et atelier pouvant recevoir du public (aux normes)
. Etat : Ancien

Caractéristiques :

  • Prestations locaux activité / entrepôt
  • Chauffage
  • Site sécurisé
  • Atelier
  • Bureaux
  • Parking
  • Sanitaire

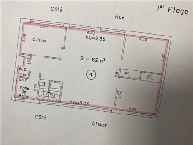
Surfaces

EtageNatureSurface (m²)Disponibilité
1er étageHabitation62Immédiate
Rez-de-chausséeBureaux17Immédiate
Rez-de-chausséeActivités510Immédiate
Sous-solRéserve36Immédiate
Total bâtiment 625 

Localisation

Localisation
95870 BEZONS
Facilités
PLACE DES DROITS DE L'HOMME (272)
Proche de l’A15
T2 - Bezons
PLACE DES DROITS DE L'HOMME (272)

Energies

DPE

Diagnostic de performance énergétique

Informations sur le Marché

Prix : 1 200 000 € Net vendeur

Prix des Entrepôts/Locaux d'activités à vendre Val-d'Oise

État du bien

Prix bas

Prix haut

Neuf/Restructuré
1 200 €/m²
2 000 €/m²
Rénové
Non spécifié 
Non spécifié 
État d'usage
800 €/m²
1 600 €/m²
1 400
€/m²

en moyenne

Cette valeur n’est pas exhaustive et ne saurait en rien remplacer l’avis d’un expert pour un bien spécifique.

589 m²
Non divisible
1 200 000 € Net vendeur
 
589 m²
Non divisible
1 200 000 € Net vendeur
Thibault PELVET

Votre contact

Thibault PELVET

À l'envoi, vous acceptez nos CGU
Envie de faciliter votre recherche ? Créer un compte

Annonces similaires

Vos favoris

Les offres ajoutées en favori seront perdues en fin de session. Pour conserver vos données et bénéficier d'autres avantages, nous vous invitons à vous identifier ou à créer un compte CBRE.

Aucun élément trouvé.
Loading...