DXProgram est un outil qui permet d'estimer rapidement les surfaces nécessaires pour votre projet immobilier.
Tous les bureaux à louer
Tous les bureaux à vendre
Confier mon bien
Tous les coworking
Toutes les autres offres avec Néo-Nomade
Tous les entrepôts à louer
Tous les entrepôts à vendre
Tous les commerces à louer
Tous les commerces à vendre
Tous les commerces à céder
Aucun élément trouvé.
Ce bien vous intéresse ?
Afficher le numéro
Autres : Bureaux à louer Gemenos / Bureaux à louer Bouches-du-Rhône / Bureaux à louer Provence-Alpes-Côte d'Azur
Proches : Aubagne / Aix-en-Provence / Marseille
Annonce mise à jour le 11/03/2026
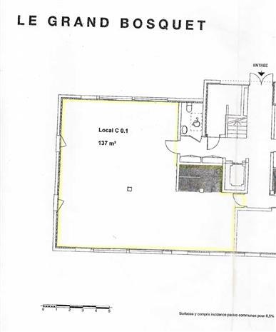
BUREAUX A LOUER - 13420 GEMENOS : Le GRAND BOSQUET est un programme d'immeubles de bureaux implanté au sein d'un parc arboré, avec une vue imprenable sur les collines de Pagnol au pied du Garlaban. Haute performance environnementale.N’hésitez pas à nous contacter pour découvrir ces bureaux.CBRE leader mondial en Immobilier d’entreprise est à votre disposition pour vous accompagner dans tous vos projets immobiliers grâce à sa palette de métiers permettant de répondre à toutes problématiques immobilières de la valorisation, en passant par la gestion et la commercialisation à la rénovation.
Climatisation / Chauffage : consommation incluse dans les chargesCloisonnement vitréCâblage4 places de parking extérieures privatives incluses dans le loyer.. Etat : Ancien
Caractéristiques :
DPE
Votre contact
Juliette NIOLLON
Location bureau AIX EN PROVENCE
Disponibilité : Septembre 2026
Disponibilité : Immédiate
Location bureau ST MITRE LES REMPARTS
Location bureau ROUSSET
Location bureau MEYREUIL
Location bureau MARSEILLE 2ème (13002)
Disponibilité : 3 mois ap. acc.
Location bureau BOUC BEL AIR
Disponibilité : Selon les lots
Location bureau STRASBOURG
Disponibilité : Immédiate selon lot
Vous pouvez indiquer plusieurs adresses e-mail séparées par des virgules
En cliquant sur le bouton, vous acceptez que les informations ci-dessus soient enregistrées par CBRE
Les offres ajoutées en favori seront perdues en fin de session. Pour conserver vos données et bénéficier d'autres avantages, nous vous invitons à vous identifier ou à créer un compte CBRE.