Location bureau CAGNES SUR MER - 173 m²

Localisation06800 CAGNES SUR MER
Planifier une visitePlanifier une visite
Bureau Location 06800 CAGNES SUR MER
Disponibilité immédiate
Bureau Location 06800 CAGNES SUR MER Bureau Location 06800 CAGNES SUR MER Bureau Location 06800 CAGNES SUR MER Bureau Location 06800 CAGNES SUR MER Bureau Location 06800 CAGNES SUR MER Bureau Location 06800 CAGNES SUR MER Bureau Location 06800 CAGNES SUR MER Bureau Location 06800 CAGNES SUR MER

Ce bien vous intéresse ?

Afficher le numéro

Description Aménagements Surfaces Localisation Energies Infos Marché

Description

Annonce mise à jour le 25/02/2026

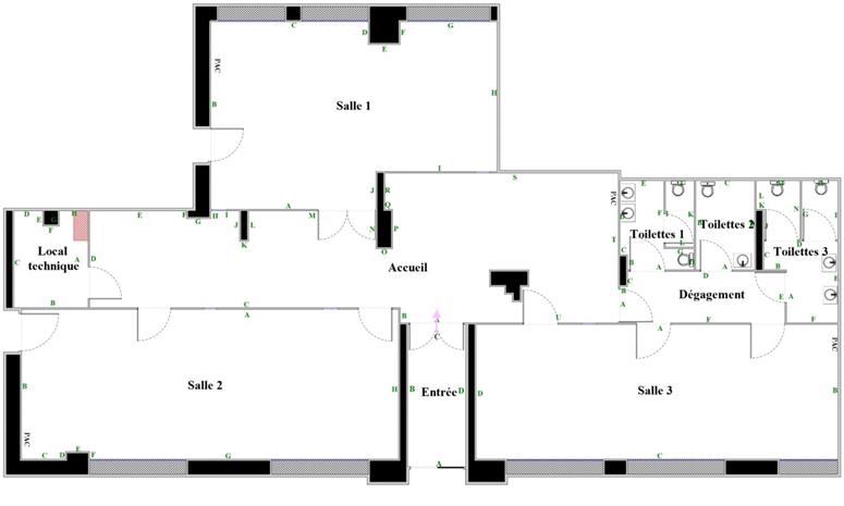
CAGNES SUR MER (06800) - CBRE vous propose à la location un bureau d'environ 173 m², en RDC. Ce bureau à louer en excellent état est parfaitement adapté à une installation rapide. Idéalement équipé pour la formation ou le coworking (multiples salles, sanitaires dont 1 PMR, espace détente/kitchenette), il offre un environnement de travail de qualité.

Positionnement stratégique entre Nice et Antibes, avec un cadre de travail attractif. Environnement économique dynamique, parc tertiaire en développement — notamment autour de Polygone Riviera et des secteurs mixtes. Localisation à la clientèle locale et touristique variée, offrant des conditions d’accessibilité optimales pour les collaborateurs et les clients.

Si vous êtes intéressés par ces bureaux à louer à CAGNES SUR MER (06800) ou si vous souhaitez obtenir plus d'informations, n'hésitez pas à nous contacter pour planifier une visite et obtenir toutes les informations requises pour votre projet immobilier.

Aménagements

. Bureaux aménagés cloisonnés
. Climatisation réversible
. Locaux en bon état
. Faux-plafonds
. Plinthes périphériques
. Fibre
. Plusieurs sanitaires, dont 1 PMR
. Espace détente et kitchenette
. 3 salles en RDC

. Etat : Ancien

Caractéristiques :

  • Climatisation
  • Cafétéria / cuisine
  • Accessibilité PMR

Surfaces

EtageNatureSurface (m²)DisponibilitéLoyerCharges locataire
Rez-de-chausséeBureaux173Immédiate170 €/m²/an HT HC41 €/HT/m²/an

Localisation

Localisation
06800 CAGNES SUR MER
Facilités
A8 (sortie 48)
RN7
Gare TER Cagnes sur Mer
Réseau urbain
Future Ligne 4
International de Nice à 10 mn

Energies

DPE

Diagnostic de performance énergétique

Informations sur le Marché

Loyer : 170 € /m²/an HT HC
173 m²
Non divisible
170 € /m²/an HT HC
 
173 m²
Non divisible
170 € /m²/an HT HC
Catherine TABARES

Votre contact

Catherine TABARES

À l'envoi, vous acceptez nos CGU
Envie de faciliter votre recherche ? Créer un compte
Vos favoris

Les offres ajoutées en favori seront perdues en fin de session. Pour conserver vos données et bénéficier d'autres avantages, nous vous invitons à vous identifier ou à créer un compte CBRE.

Aucun élément trouvé.
Loading...