Location entrepôt / local d'activités LES MUREAUX - 10 000 m²

Localisation78130 LES MUREAUX
Planifier une visitePlanifier une visite
Entrepôt / Local d'activités Location 78130 LES MUREAUX
Disponibilité Immédiate
Entrepôt / Local d'activités Location 78130 LES MUREAUX Entrepôt / Local d'activités Location 78130 LES MUREAUX Entrepôt / Local d'activités Location 78130 LES MUREAUX Entrepôt / Local d'activités Location 78130 LES MUREAUX Entrepôt / Local d'activités Location 78130 LES MUREAUX Entrepôt / Local d'activités Location 78130 LES MUREAUX Entrepôt / Local d'activités Location 78130 LES MUREAUX Entrepôt / Local d'activités Location 78130 LES MUREAUX Entrepôt / Local d'activités Location 78130 LES MUREAUX Entrepôt / Local d'activités Location 78130 LES MUREAUX Entrepôt / Local d'activités Location 78130 LES MUREAUX Entrepôt / Local d'activités Location 78130 LES MUREAUX

Ce bien vous intéresse ?

Afficher le numéro

Description Aménagements Surfaces Localisation Energies Infos Marché

Description

Annonce mise à jour le 05/03/2026

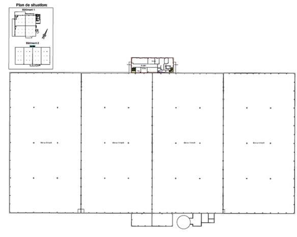
A 39 km à l'Ouest de Paris, CBRE vous propose dans un entrepôt développant 21 345 m² une surface de 10 000 m², divisible à partir de 5 000 m². Ce site logistique bénéficie d’une bonne desserte routière avec notamment l’autoroute A13. ICPE : 1510, 2662, 2663, 2910, 2925, 1432.

La commune des Mureaux se trouve dans le Nord du département des Yvelines, sur la rive gauche de la Seine, à trente kilomètres environ au Nord-Ouest de Versailles.

Aménagements

Autorisations ICPE : 1510, 2662, 2663
Déclarations ICPE : 2910, 2925

Aménagements :
SPECIFICATIONS :
Bâtiment développant une surface totale de 21 345 m²

STRUCTURE :
Hauteur libre 10,50 m
Charges au sol 5t/m²

EQUIPEMENTS :
11 portes à quai
1 rampe
Sprinkler
R.I.A.
Chauffage par aérothermes
Cour de débord
Parking PL 10 emplacements

. Etat : Ancien

Caractéristiques :

  • ICPE
  • Prestations locaux activité / entrepôt
  • Hauteur libre
  • Portes de plain-pied
  • Chauffage

Surfaces

NatureSurface (m²)DisponibilitéLoyer
Entrepôts10 000ImmédiateNous contacter

Localisation

Localisation
78130 LES MUREAUX
Facilités
A13 / E5 (sortie Flins-Aubergenville) 4 km
D14, D43
SNCF / Transilien ligne « J » : Les Mureaux ou Gare de Mantes la Jolie
ligne 6 :: chemin de Flins (au pied de l’immeuble)
Aérodrome de Cergy Pontoise (16,7 km)
Paris Orly
Paris Roissy-Charles-de-Gaulle

Energies

DPE

Diagnostic de performance énergétique

Informations sur le Marché

Loyer : 65 € /m²/an HT HC

Prix des Entrepôts/Locaux d'activités à louer Yvelines

État du bien

Loyer bas

Loyer haut

Neuf/Restructuré
95 €/m² HT HC par an
145 €/m² HT HC par an
Rénové
Non spécifié 
Non spécifié 
État d'usage
85 €/m² HT HC par an
120 €/m² HT HC par an
112
€/m² HT HC par an

en moyenne

Les fourchettes correspondent à des loyers stipulés dans les baux (hors RIE, hors parking).

Cette valeur n’est pas exhaustive et ne saurait en rien remplacer l’avis d’un expert pour un bien spécifique.

10 000 m²
Non divisible
65 € /m²/an HT HC
 
10 000 m²
Non divisible
65 € /m²/an HT HC
Elisabeth FERNANDEZ

Votre contact

Elisabeth FERNANDEZ

À l'envoi, vous acceptez nos CGU
Envie de faciliter votre recherche ? Créer un compte
Vos favoris

Les offres ajoutées en favori seront perdues en fin de session. Pour conserver vos données et bénéficier d'autres avantages, nous vous invitons à vous identifier ou à créer un compte CBRE.

Aucun élément trouvé.
Loading...