Location bureau PARIS 8ème (75008) - 139 m²

Localisation11 RUE SAINT FLORENTIN 75008 PARIS Voir sur Street View
Planifier une visitePlanifier une visite
Bureau Location 75008 PARIS 11 RUE SAINT FLORENTIN
Disponibilité Immédiate
Bureau Location 75008 PARIS 11 RUE SAINT FLORENTIN Bureau Location 75008 PARIS 11 RUE SAINT FLORENTIN Bureau Location 75008 PARIS 11 RUE SAINT FLORENTIN Bureau Location 75008 PARIS 11 RUE SAINT FLORENTIN Bureau Location 75008 PARIS 11 RUE SAINT FLORENTIN Bureau Location 75008 PARIS 11 RUE SAINT FLORENTIN Bureau Location 75008 PARIS 11 RUE SAINT FLORENTIN Bureau Location 75008 PARIS 11 RUE SAINT FLORENTIN

Ce bien vous intéresse ?

Afficher le numéro

Description Aménagements Surfaces Localisation Energies Infos Marché

Description

Annonce mise à jour le 26/02/2026

Immeuble ancien d'excellent standing, au cœur du Quartier Central des Affaires, de la Concorde et à deux pas de la rue Saint-Honoré.

Si ce bureau à louer à Paris 8 vous intéresse ou si vous souhaitez obtenir plus d'informations, n'hésitez pas à me contacter aujourd'hui pour organiser une visite et bénéficier de toutes les informations nécessaires pour votre projet immobilier.
En tant qu'expert en immobilier d’entreprise, je suis à votre disposition pour vous aider à trouver le bien disponible à la location, adapté à vos activités professionnelles et à votre cœur de métier.

Aménagements

PRESTATIONS IMMEUBLE :

. Immeuble haut de gamme bénéficiant d'une façade ravalée en 2016
. Parties communes et hall d'entrée qualitatifs
. Un cabinet d’architecte de renom : Donati & Associés
. Cour végétalisée, entièrement rénovée.

PRESTATIONS SURFACE :

. Les locaux sont d’un excellent standing et donnent sur la cour arborée de l’immeuble

. Etat : Ancien

Caractéristiques :

  • Espace extérieur

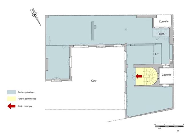
Surfaces

BâtimentEtageNatureSurface (m²)Disponibilité
B2ème étageBureaux139Immédiate

Localisation

Localisation
11 RUE SAINT FLORENTIN 75008 PARIS
Facilités
Concorde (Lignes 1, 8 et 12)
Madeleine (Lignes 8, 12 et 14)
Auber (Ligne A)
Nombreuses lignes

Energies

DPE

Diagnostic de performance énergétique

Informations sur le Marché

Loyer : Nous contacter

Prix des Bureaux à louer Paris 08

État du bien

Loyer bas

Loyer haut

Neuf/Restructuré
600 €/m² HT HC par an
1 100 €/m² HT HC par an
Rénové
450 €/m² HT HC par an
110 €/m² HT HC par an
État d'usage
400 €/m² HT HC par an
820 €/m² HT HC par an
580
€/m² HT HC par an

en moyenne

Les fourchettes correspondent à des loyers stipulés dans les baux (hors RIE, hors parking).

Cette valeur n’est pas exhaustive et ne saurait en rien remplacer l’avis d’un expert pour un bien spécifique.

139 m²
Non divisible
Nous contacter
 
139 m²
Non divisible
Nous contacter
Joséphine GALLAY

Votre contact

Joséphine GALLAY

À l'envoi, vous acceptez nos CGU
Envie de faciliter votre recherche ? Créer un compte

Annonces similaires

Vos favoris

Les offres ajoutées en favori seront perdues en fin de session. Pour conserver vos données et bénéficier d'autres avantages, nous vous invitons à vous identifier ou à créer un compte CBRE.

Aucun élément trouvé.
Loading...