Location bureau ST PRIEST - 2 126 m²

LocalisationTRIOPOLE, 11 RUE AIME COTTON 69800 ST PRIEST Voir sur Street View
Planifier une visitePlanifier une visite
Bureau Location 69800 ST PRIEST 11 RUE AIME COTTON
Disponibilité Immédiate
Bureau Location 69800 ST PRIEST 11 RUE AIME COTTON Bureau Location 69800 ST PRIEST 11 RUE AIME COTTON Bureau Location 69800 ST PRIEST 11 RUE AIME COTTON Bureau Location 69800 ST PRIEST 11 RUE AIME COTTON Bureau Location 69800 ST PRIEST 11 RUE AIME COTTON Bureau Location 69800 ST PRIEST 11 RUE AIME COTTON Bureau Location 69800 ST PRIEST 11 RUE AIME COTTON Bureau Location 69800 ST PRIEST 11 RUE AIME COTTON Bureau Location 69800 ST PRIEST 11 RUE AIME COTTON Bureau Location 69800 ST PRIEST 11 RUE AIME COTTON Bureau Location 69800 ST PRIEST 11 RUE AIME COTTON Bureau Location 69800 ST PRIEST 11 RUE AIME COTTON Bureau Location 69800 ST PRIEST 11 RUE AIME COTTON Bureau Location 69800 ST PRIEST 11 RUE AIME COTTON Bureau Location 69800 ST PRIEST 11 RUE AIME COTTON Bureau Location 69800 ST PRIEST 11 RUE AIME COTTON Bureau Location 69800 ST PRIEST 11 RUE AIME COTTON Bureau Location 69800 ST PRIEST 11 RUE AIME COTTON Bureau Location 69800 ST PRIEST 11 RUE AIME COTTON Bureau Location 69800 ST PRIEST 11 RUE AIME COTTON Bureau Location 69800 ST PRIEST 11 RUE AIME COTTON

Ce bien vous intéresse ?

Afficher le numéro

Description Aménagements Surfaces Localisation Energies Infos Marché

Description

Annonce mise à jour le 02/02/2026

En façade de l'A43, proche des accès de la Rocade Est, 3 bâtiments neufs sur 3 niveaux, très bonnes prestations, avec classement énergétique norme BBC (bâtiment basse consommation)

Le Grand Lyon Est a su attirer de grandes entreprises grâce à un accès privilégié de par les axes principaux (A42/43/46, Boulevard Périphérique) ainsi que par ses transports en commun.
De nombreuses sociétés de l’ingénierie industrielle, des sciences de l’environnement, des services et des biotechnologies ont fait le choix de s’y implanter.
Cette zone s’étant sur les communes de Villeurbanne, Vaulx-en-Velin, Saint-Priest, Bron, Vénissieux, Meyzieu, Genas, Chassieu…

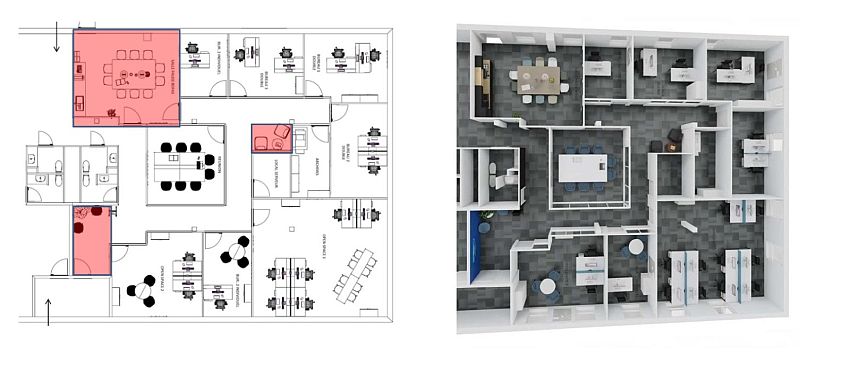
Aménagements

. Menuiseries extérieures aluminium avec chassis ouvrant à la française
. Pompe à chaleur réversible avec récupérateur d'énergie type BBC
. Plafonds suspendus en dalles
. Plinthes double compartimentage (courant fort / courant faible)

. Ascenseurs 8 personnes (625 kg)
. Interphone à l'entrée de chaque immeuble

. Lot RDC de 582m² divisible à partir de 214m²
. R+1 bât. 3 repeint
. Sanitaires PMR
. ERP 5 envisageable (nous consulter)

. Répartition parkings :
. Bât. 1
. RDC = 21 places
. R+1 = 5 places
. R+2 =10 places
. Bât. 2
. RDC = 12 places
. Bât. 3
. RDC= 10 places
. R+1 = 10 places
. R+2 = 10 places

. Etat : Récent

Caractéristiques :

  • Ascenseur
  • Parkings
  • ERP
  • Contrôle d'accès

Surfaces

BâtimentEtageNatureSurface (m²)DisponibilitéLoyerCharges locataire
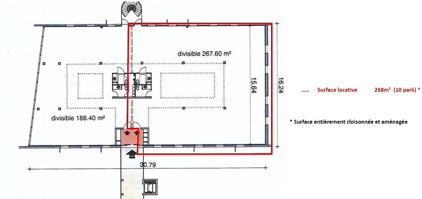
12ème étageBureaux268Immédiate120 €/m²/an HT HC20 €/m²/an HT
11er étageBureaux133Immédiate120 €/m²/an HT HC20 €/m²/an HT
1Rez-de-chausséeBureaux268Immédiate120 €/m²/an HT HC20 €/m²/an HT
1Rez-de-chausséeBureaux314Immédiate120 €/m²/an HT HC20 €/m²/an HT
1ParkingsImmédiate300 €/U/an HT HC
Total bâtiment  983   
BâtimentEtageNatureSurface (m²)DisponibilitéLoyerCharges locataire
2Rez-de-chausséeBureaux339Immédiate120 €/m²/an HT HC20 €/m²/an HT
BâtimentEtageNatureSurface (m²)DisponibilitéLoyerCharges locataire
32ème étageBureaux268Immédiate120 €/m²/an HT HC20 €/m²/an HT
31er étageBureaux268Immédiate120 €/m²/an HT HC20 €/HT/m²/an
3Rez-de-chausséeBureaux268Immédiate120 €/m²/an HT HC20 €/HT/m²/an
Total bâtiment  804   
Total général : 1787 m²

Localisation

Localisation
TRIOPOLE, 11 RUE AIME COTTON 69800 ST PRIEST
Facilités
A46, Boulevard Périphérique, Rocade Est
Lignes TCL
Ligne T2
Aéroport de Saint-Exupéry à 15 min, aéroport de Bron à proximité immédiate

Energies

DPE

Diagnostic de performance énergétique

Informations sur le Marché

Loyer : 120 € /m²/an HT HC
2 126 m²
Divisibilité min. 133 m²
120 € /m²/an HT HC
 
2 126 m²
Divisibilité min. 133 m²
120 € /m²/an HT HC
Virginie THOMMEREL

Votre contact

Virginie THOMMEREL

À l'envoi, vous acceptez nos CGU
Envie de faciliter votre recherche ? Créer un compte

Annonces similaires

Vos favoris

Les offres ajoutées en favori seront perdues en fin de session. Pour conserver vos données et bénéficier d'autres avantages, nous vous invitons à vous identifier ou à créer un compte CBRE.

Aucun élément trouvé.
Loading...