Location bureau TOURCOING - 866 m²

Localisation59200 TOURCOING
Planifier une visitePlanifier une visite
Bureau Location 59200 TOURCOING
Disponibilité Selon les lots
Bureau Location 59200 TOURCOING Bureau Location 59200 TOURCOING Bureau Location 59200 TOURCOING Bureau Location 59200 TOURCOING Bureau Location 59200 TOURCOING Bureau Location 59200 TOURCOING Bureau Location 59200 TOURCOING Bureau Location 59200 TOURCOING Bureau Location 59200 TOURCOING

Ce bien vous intéresse ?

Afficher le numéro

Description Aménagements Surfaces Localisation Energies Infos Marché

Description

Annonce mise à jour le 13/02/2026

Venez découvrir ces offres au sein du pôle dynamique de la Plaine Image ! Deux types de surface sont à la location dans cet immeuble de qualité : Une première de 69 m², idéale pour y installer vos bureaux, avec un rapport qualité/prix très intéressant.

Une deuxième surface de 148 m² à destination de commerces ou de services bénéficiant d'une très bonne visibilité sur le site de la Plaine Image.

Aménagements

. Chauffage : collectif gaz
. Contrôle d’accès
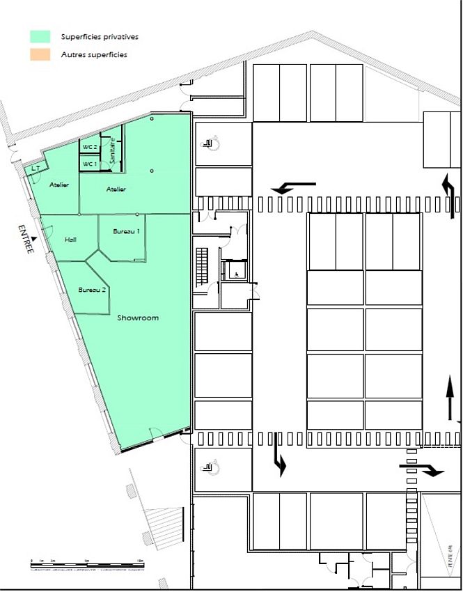
. Lot de 294 m² dispose de :
- un bureau individuel de 16 m²
- un grand open space de 145 m²
- un second espace de 85 m²
- des locaux techniques et sanitaires

Travaux d’adaptation ERP en cours

. Impôt foncier (différent selon les lots) : voir détails en annexe

. Places de parking intérieures :
incluses dans le loyer
(voir détails en annexe)

. Les charges comprennent : l'entretien et maintenance du bâtiment (portail, parking, toiture, assurance, honoraires syndic …)

. Compteurs individuels pour le chauffage au gaz et pour l’électricité.

Bail : commercial ou bail dérogatoire possible
. Etat : Rénové

Caractéristiques :

  • Contrôle d'accès
  • ERP
  • Parkings

Surfaces

LotEtageNatureSurface (m²)DisponibilitéLoyerCharges locataire
A11er étageBureaux67Immédiate80 €/m²/an HT HC45 €/HT/m²/an
A31er étageBureaux69Immédiate80 €/m²/an HT HC48 €/HT/m²/an
A41er étageBureaux67Immédiate80 €/m²/an HT HC45 €/HT/m²/an
B1er étageBureaux369Mars 202680 €/m²/an HT HC27 €/HT/m²/an
DRez-de-chausséeBureaux294Immédiate70 €/m²/an HT HC18 €/HT/m²/an
Total bâtiment  866   

Localisation

Localisation
59200 TOURCOING
Facilités
. Métro ligne 2 station :
"Alsace"
. Gare de Roubaix à 10 minutes
. Tramway

Energies

DPE

Diagnostic de performance énergétique

Informations sur le Marché

Loyer : A partir de 70 € m²/an HT HC
866 m²
Divisibilité min. 67 m²
A partir de 70 € m²/an HT HC
 
866 m²
Divisibilité min. 67 m²
A partir de 70 € m²/an HT HC
Contact

Votre contact

Baptiste BURETTE

À l'envoi, vous acceptez nos CGU
Envie de faciliter votre recherche ? Créer un compte

Annonces similaires

Vos favoris

Les offres ajoutées en favori seront perdues en fin de session. Pour conserver vos données et bénéficier d'autres avantages, nous vous invitons à vous identifier ou à créer un compte CBRE.

Aucun élément trouvé.
Loading...