Vente bureau PARIS 14ème (75014) - 195 m²

Localisation75014 PARIS
Planifier une visitePlanifier une visite
Bureau Vente 75014 PARIS
Disponibilité Immédiate
Bureau Vente 75014 PARIS Bureau Vente 75014 PARIS Bureau Vente 75014 PARIS Bureau Vente 75014 PARIS Bureau Vente 75014 PARIS Bureau Vente 75014 PARIS Bureau Vente 75014 PARIS Bureau Vente 75014 PARIS Bureau Vente 75014 PARIS Bureau Vente 75014 PARIS

Ce bien vous intéresse ?

Afficher le numéro

Description Aménagements Surfaces Localisation Energies Infos Marché

Description

Annonce mise à jour le 10/12/2025

À deux pas de la place Denfert-Rochereau, découvrez un espace de bureaux premium de 200 m² en duplex. Ces locaux lumineux et modulables offrent une grande flexibilité d’aménagement grâce à une structure avec très peu de contraintes porteuses.
En excellent état, ils sont équipés de la climatisation et conformes aux normes PMR, garantissant confort et accessibilité. Un emplacement stratégique, idéal pour une tout type d’activité tertiaire.

Aménagements

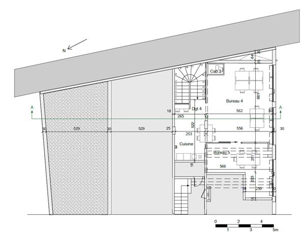
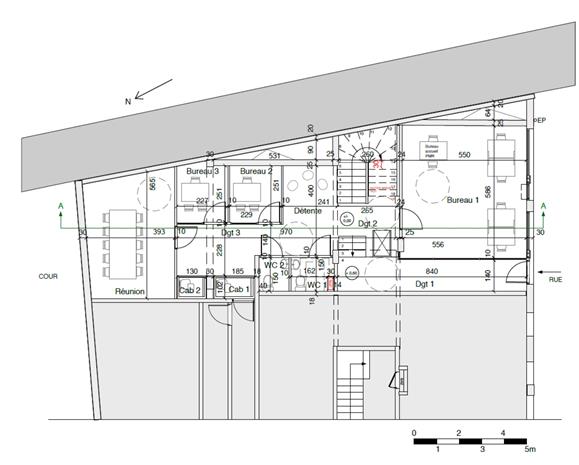
Surface : ECD environ 200 m²
RDC :
3 bureaux cloisonnés
2 phones box
Salle de réunion
Sanitaire
Cuisine

Entre sol :
Open space
2 bureaux cloisonnés
Salle de réunion
Espace de stockage
Douche
Sanitaire
Kitchnette

Locaux entièrement rénovés
Accès PMR
Climatisation réversible
Parquet
Locaux modulables avec peu de contrainte porteuse
Baie de brassage
10 places de parking disponibles à la location
Local vélo

. Surface et affectation : en cours de validation
. Etat : Ancien

Caractéristiques :

  • Salle de réunion
  • Cafétéria / cuisine
  • Accessibilité PMR
  • Climatisation
  • Caractère / hauteur plafond

Surfaces

LotEtageNatureSurface (m²)DisponibilitéPrix de vente
651er étageBureaux77ImmédiateNous contacter
65Rez-de-chausséeBureaux118ImmédiateNous contacter
Total bâtiment  195  

Localisation

Localisation
75014 PARIS
Facilités
DAREAU-RENE COTY (216, 88), LA TOMBE ISSOIRE (513, 62), ALESIA - RENE COTY (PC1)
Mouton-Duvernet (4)
Denfert-Rochereau (B)

Energies

DPE : D

Diagnostic de performance énergétique

Informations sur le Marché

Prix : 8 000 € m² NV
195 m²
Non divisible
8 000 € m² NV
 
195 m²
Non divisible
8 000 € m² NV
Steve COHEN

Votre contact

Steve COHEN

À l'envoi, vous acceptez nos CGU
Envie de faciliter votre recherche ? Créer un compte
Vos favoris

Les offres ajoutées en favori seront perdues en fin de session. Pour conserver vos données et bénéficier d'autres avantages, nous vous invitons à vous identifier ou à créer un compte CBRE.

Aucun élément trouvé.
Loading...