Location local d'activités GENNEVILLIERS - 2 228 m²

Localisation92230 GENNEVILLIERS
Planifier une visitePlanifier une visite
Local d'activités Location 92230 GENNEVILLIERS
Disponibilité Octobre 2026
Local d'activités Location 92230 GENNEVILLIERS Local d'activités Location 92230 GENNEVILLIERS Local d'activités Location 92230 GENNEVILLIERS Local d'activités Location 92230 GENNEVILLIERS Local d'activités Location 92230 GENNEVILLIERS Local d'activités Location 92230 GENNEVILLIERS Local d'activités Location 92230 GENNEVILLIERS Local d'activités Location 92230 GENNEVILLIERS

Ce bien vous intéresse ?

Afficher le numéro

Description Aménagements Surfaces Localisation Energies Infos Marché

Description

Annonce mise à jour le 11/05/2026

CBRE vous propose à louer deux lots d'activités situé sur la commune de Gennevilliers dans le département des Hauts de Seine (92). A proximité de l'autoroute A86 et sur la ligne C du RRER d’Île-de-France. Belle surface de 2 228 m² divisibles à partir de 1 043 m². Location entrepôt idéal pour le développement de vos activités professionnelles. Bail commercial. Disponibilité octobre 2026.

Si cet entrepôt/local d’activités à louer dans le 92 vous intéresse ou si vous souhaitez obtenir plus de renseignements, n'hésitez pas à me contacter aujourd'hui pour organiser une visite et bénéficier de toutes les informations nécessaires pour votre projet immobilier.

En tant qu'expert en immobilier professionnel/industriel, je suis à votre disposition pour vous aider à trouver le bien adapté à vos activités professionnelles et à votre cœur de métier.

Aménagements

Aménagements :
- CONSTRUCTION -
. Charpente métallique
. Murs béton poli
. Sol béton
. Couverture : bac acier

- ACTIVITES -
. HSP : 6.4 m environ
. Charge au sol : 3T/m²
. Chauffage : aérothermes gaz
. Eclairage zénithal
. Rack
. Accès gros porteurs
. 2 portes d'accès de plain-pied

- BUREAUX -
. Climatisation réversible
. Faux plafond
. Moquette
. Sanitaires
. Vidéo-surveillance
. Alarme
. Etat : Ancien

Caractéristiques :

  • Chauffage
  • Éclairage
  • Entrepôt racké
  • Aire de manoeuvre
  • Site sécurisé

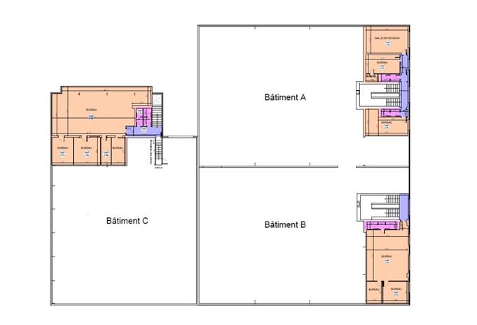
Surfaces

BâtimentCelluleLotEtageNatureSurface (m²)DisponibilitéLoyerCharges locataire
AAA2ème étageBureaux268Octobre 2026200 €/m²/an HT HC04 €/m²/an HT
AAA1er étageBureaux115Octobre 2026200 €/m²/an HT HC04 €/m²/an HT
AAARez-de-chausséeBureaux87Octobre 2026200 €/m²/an HT HC04 €/m²/an HT
AAARez-de-chausséeActivités715Octobre 2026200 €/m²/an HT HC04 €/m²/an HT
Total bâtiment    1 185   
BâtimentCelluleLotEtageNatureSurface (m²)DisponibilitéLoyerCharges locataire
BBB2ème étageBureaux155Octobre 2026200 €/m²/an HT HC04 €/m²/an HT
BBB1er étageBureaux109Octobre 2026200 €/m²/an HT HC04 €/m²/an HT
BBBRez-de-chausséeBureaux85Octobre 2026200 €/m²/an HT HC04 €/m²/an HT
BBBRez-de-chausséeActivités694Octobre 2026200 €/m²/an HT HC04 €/m²/an HT
Total bâtiment    1 043   
Total général : 2228 m²

Localisation

Localisation
92230 GENNEVILLIERS
Facilités
RUE DES NOELS (166), HENRI COLIN (261)
Les Grésillons (C)
A86

Energies

DPE

Diagnostic de performance énergétique

Informations sur le Marché

Loyer : 200 € /m²/an HT HC

Prix des Entrepôts/Locaux d'activités à louer Gennevilliers

État du bien

Loyer bas

Loyer haut

Neuf/Restructuré
140 €/m² HT HC par an
180 €/m² HT HC par an
Rénové
Non spécifié 
Non spécifié 
État d'usage
120 €/m² HT HC par an
170 €/m² HT HC par an
153
€/m² HT HC par an

en moyenne

Les fourchettes correspondent à des loyers stipulés dans les baux (hors RIE, hors parking).

Cette valeur n’est pas exhaustive et ne saurait en rien remplacer l’avis d’un expert pour un bien spécifique.

2 228 m²
Divisibilité min. 1 043 m²
200 € /m²/an HT HC
 
2 228 m²
Divisibilité min. 1 043 m²
200 € /m²/an HT HC
Enguerrand de VILLETTE

Votre contact

Enguerrand de VILLETTE

À l'envoi, vous acceptez nos CGU
Envie de faciliter votre recherche ? Créer un compte

Annonces similaires

Vos favoris

Les offres ajoutées en favori seront perdues en fin de session. Pour conserver vos données et bénéficier d'autres avantages, nous vous invitons à vous identifier ou à créer un compte CBRE.

Aucun élément trouvé.
Loading...