Location bureau NANTES - 75 m²

Localisation8 RUE DE LA GARDE 44300 NANTES Voir sur Street View
Planifier une visitePlanifier une visite
Bureau Location 44300 NANTES 8 RUE DE LA GARDE
Disponibilité Immédiate
Bureau Location 44300 NANTES 8 RUE DE LA GARDE Bureau Location 44300 NANTES 8 RUE DE LA GARDE Bureau Location 44300 NANTES 8 RUE DE LA GARDE Bureau Location 44300 NANTES 8 RUE DE LA GARDE Bureau Location 44300 NANTES 8 RUE DE LA GARDE Bureau Location 44300 NANTES 8 RUE DE LA GARDE

Ce bien vous intéresse ?

Afficher le numéro

Description Aménagements Surfaces Localisation Energies Infos Marché

Description

Annonce mise à jour le 22/01/2026

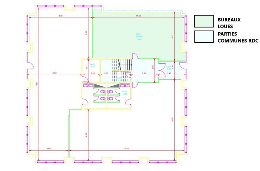
Sur un terrain de 2 909 m² environ, dans un immeuble R+1 de bureaux en copropriété. CBRE NANTES vous propose à la location, une surface de bureaux en RDC d'une surface de 75 m² environ. Le plateau est livré cloisonné, câblés courant fort et faible.

Sur un site indépendant à forte visibilité, CBRE vous propose une surface de bureaux de 75 m² de bureaux en rez de chaussée, disposant de nombreux parkings et d'une bonne desserte routières et transport en commun.

Aménagements

2 bureaux + open space
Câblage fort et faible
Moquette
Zonage PLUM UEm
Foncier 2 909 m²
fibre optique dans l’immeuble
3 stationnements

. Etat : Récent

Surfaces

BâtimentEtageNatureSurface (m²)DisponibilitéLoyerCharges locataire
1Rez-de-chausséeBureaux75Immédiate90 €/m²/an HT HC18 €/HT/m²/an

Localisation

Localisation
8 RUE DE LA GARDE 44300 NANTES
Facilités
Tréca (80)
Courcerie (87°
Bois des Anses (C7)
Porte de Carquefou / Porte de Sainte Luce
Route de Paris
Echangeur A11 et A 811

Energies

DPE

Diagnostic de performance énergétique

Informations sur le Marché

Loyer : 90 € /m²/an HT HC
75 m²
Non divisible
90 € /m²/an HT HC
 
75 m²
Non divisible
90 € /m²/an HT HC
Charlotte DELSART

Votre contact

Charlotte DELSART

À l'envoi, vous acceptez nos CGU
Envie de faciliter votre recherche ? Créer un compte
Vos favoris

Les offres ajoutées en favori seront perdues en fin de session. Pour conserver vos données et bénéficier d'autres avantages, nous vous invitons à vous identifier ou à créer un compte CBRE.

Aucun élément trouvé.
Loading...