Location Coworking PARIS 8ème (75008) - 556 m²

Localisation75008 PARIS
Planifier une visitePlanifier une visite
Coworking Location 75008 PARIS
Disponibilité Immédiate
Coworking Location 75008 PARIS Coworking Location 75008 PARIS Coworking Location 75008 PARIS Coworking Location 75008 PARIS Coworking Location 75008 PARIS Coworking Location 75008 PARIS Coworking Location 75008 PARIS Coworking Location 75008 PARIS

Ce bien vous intéresse ?

Afficher le numéro

Description Prestations Surfaces Localisation Energies Infos Marché

Description

Annonce mise à jour le 24/03/2026

Situé au 1er étage avec accès indépendant au rez-de-chaussée d’un immeuble des années 60 du 8ème arrondissement de Paris, nous vous offrons un espace de travail haut de gamme dans un cadre idéal. L’espace est aménageable sur-mesure en fonction des besoins de votre organisation.

Prestations

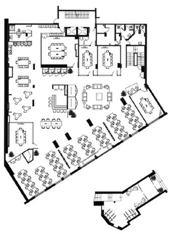
. Option 1 présente une configuration avec :
- 56 postes de travail
- 5 salles de réunion
- 1 espace repas
- Possibilité d’ajouter 4 phone boxs simple & 2 phone boxs doubles

. Option 2 présente une configuration avec :
- 84 postes de travail
- 4 salles de réunion
- 1 espace repas
- Possibilité d’ajouter 4 phone boxs simple &
2 phone boxs doubles
. Etat : Ancien

Caractéristiques :

  • Salle de réunion

Surfaces

BâtimentLotEtageNatureSurface (m²)Nombre de postesDisponibilité
1R+1EtagePrivé55684Immédiate

Localisation

Localisation
75008 PARIS
Facilités
Courcelles (Ligne 2)
Saint Philippe du Roule (Ligne 9)
Charles de Gaulle Etoile
Gare Saint-Lazare
Nombreuses lignes

Energies

DPE

Diagnostic de performance énergétique

Informations sur le Marché

Loyer : Nous contacter
556 m²
Non divisible
Nous contacter
 
556 m²
Non divisible
Nous contacter
Célia CALISTI

Votre contact

Célia CALISTI

À l'envoi, vous acceptez nos CGU
Envie de faciliter votre recherche ? Créer un compte

Annonces similaires

Vos favoris

Les offres ajoutées en favori seront perdues en fin de session. Pour conserver vos données et bénéficier d'autres avantages, nous vous invitons à vous identifier ou à créer un compte CBRE.

Aucun élément trouvé.
Loading...