Location bureau PARIS 2ème (75002) - 265 m²

Localisation46 RUE SAINTE ANNE 75002 PARIS Voir sur Street View
Planifier une visitePlanifier une visite
Bureau Location 75002 PARIS 46 RUE SAINTE ANNE
Disponibilité Janvier 2026
Bureau Location 75002 PARIS 46 RUE SAINTE ANNE Bureau Location 75002 PARIS 46 RUE SAINTE ANNE Bureau Location 75002 PARIS 46 RUE SAINTE ANNE Bureau Location 75002 PARIS 46 RUE SAINTE ANNE Bureau Location 75002 PARIS 46 RUE SAINTE ANNE

Ce bien vous intéresse ?

Afficher le numéro

Description Aménagements Surfaces Localisation Energies Infos Marché

Description

Annonce mise à jour le 08/10/2025

Dans un quartier central et recherché de Paris, ces bureaux offrent une adresse recherchée à deux pas de l’Opéra, au cœur d’un environnement dynamique.
L’espace comprend un open space avec plus de 4 mètres de hauteur sous plafond, idéale pour accueillir un showroom, une galerie d’art ou une activité de bureaux plus classique. Lumineux, modulables et facilement accessibles par les transports, ils conviennent parfaitement à des entreprises en quête d’un lieu atypique.

Si ce bureau à louer à Paris 2 vous intéresse ou si vous souhaitez obtenir plus d'informations, n'hésitez pas à me contacter aujourd'hui pour organiser une visite et bénéficier de toutes les informations nécessaires pour votre projet immobilier.
En tant qu'expert en immobilier d’entreprise, je suis à votre disposition pour vous aider à trouver le bien disponible à la location, adapté à vos activités professionnelles et à votre cœur de métier.

Aménagements

PRESTATIONS IMMEUBLE :

. Quartier central et recherché de Paris
. A deux pas de l’Opéra

PRESTATIONS SURFACE :

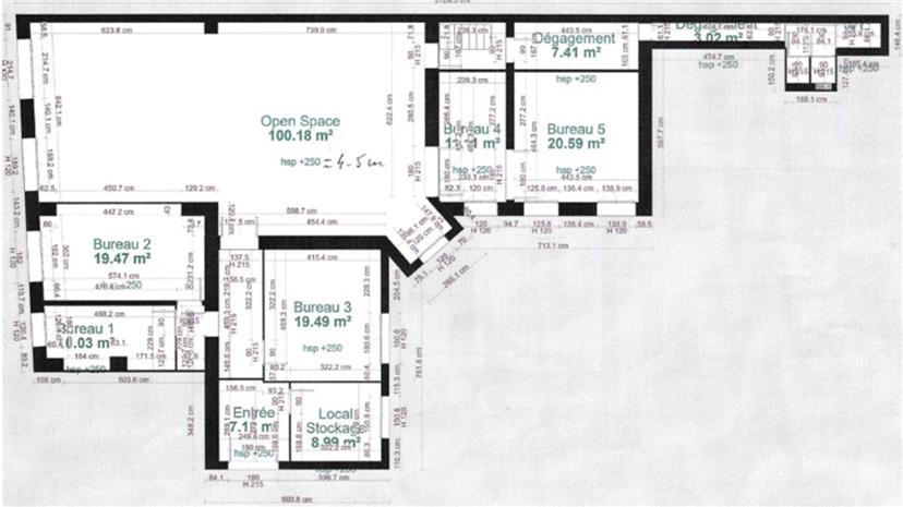
. 1 open space (+ de 4 m d'hauteur sous plafond)
. 6 bureaux
. 1 mezzanine
. Lumineux et modulables
. Etat : Ancien

Surfaces

BâtimentEtageNatureSurface (m²)DisponibilitéLoyer
11er étageBureaux265Janvier 2026630 €/m²/an HT HC

Localisation

Localisation
46 RUE SAINTE ANNE 75002 PARIS
Facilités
Pyramides (Lignes 7 et 14)
Quatre Septembre (Ligne 3)
Auber (Ligne A)
Nombreuses lignes

Energies

DPE

Diagnostic de performance énergétique

Informations sur le Marché

Loyer : 630 € /m²/an HT HC

Prix des Bureaux à louer Paris 02

État du bien

Loyer bas

Loyer haut

Neuf/Restructuré
620 €/m² HT HC par an
980 €/m² HT HC par an
Rénové
570 €/m² HT HC par an
930 €/m² HT HC par an
État d'usage
480 €/m² HT HC par an
710 €/m² HT HC par an
715
€/m² HT HC par an

en moyenne

Les fourchettes correspondent à des loyers stipulés dans les baux (hors RIE, hors parking).

Cette valeur n’est pas exhaustive et ne saurait en rien remplacer l’avis d’un expert pour un bien spécifique.

265 m²
Non divisible
630 € /m²/an HT HC
 
265 m²
Non divisible
630 € /m²/an HT HC
Sacha MARIE-GABRIELLE

Votre contact

Sacha MARIE-GABRIELLE

À l'envoi, vous acceptez nos CGU
Envie de faciliter votre recherche ? Créer un compte

Annonces similaires

Vos favoris

Les offres ajoutées en favori seront perdues en fin de session. Pour conserver vos données et bénéficier d'autres avantages, nous vous invitons à vous identifier ou à créer un compte CBRE.

Aucun élément trouvé.
Loading...