Tous les bureaux à louer
Tous les bureaux à vendre
Confier mon bien
Tous les coworking
Toutes les autres offres avec Néo-Nomade
Tous les entrepôts à louer
Tous les entrepôts à vendre
Tous les commerces à louer
Tous les commerces à vendre
Tous les commerces à céder
Aucun élément trouvé.
Autres : Bureaux à louer Alsace
Annonce mise à jour le 18/06/2024
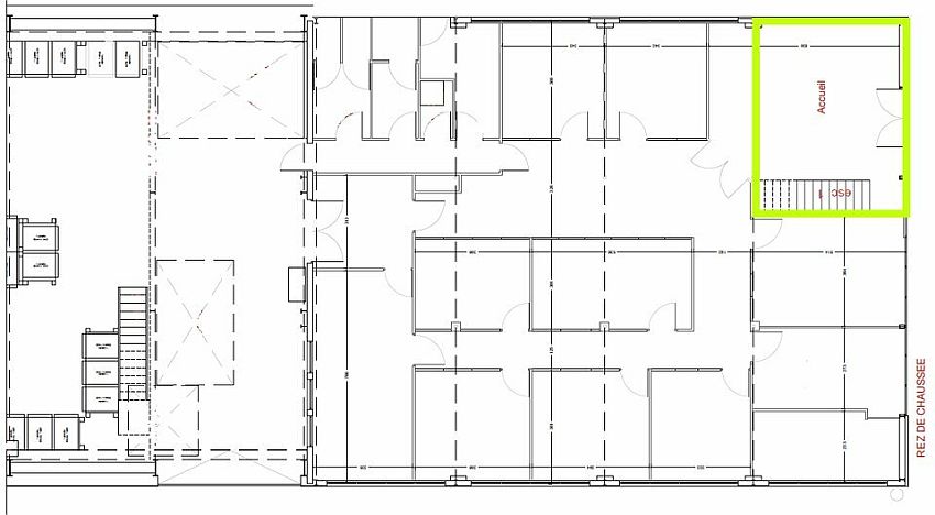
Au sein d'un bâtiment à destination de bureaux et de locaux d'activité, une cellule de bureaux d'environ 340 composé d'un accueil en RDC et de 9 bureaux à l'étage accessible par un escalier.
20 places de parking privées.
DPE
Votre contact
Patrick MOUGIN
Location bureau MULHOUSE
Disponibilité : Immédiate
Disponibilité : Immédiate.
Disponibilité : Nous consulter.
Location commerce LORIENT
Location commerce ILLZACH
Location commerce TREVENANS
Location local d'activités DOLE
Location commerce HOUSSEN
Disponibilité : 01/07/2026
Location bureau ECOLE VALENTIN
Vente bureau ROUFFACH
Disponibilité : septembre 2026
Vente bureau DOLE
Location commerce VALDAHON
Vente commerce VALENTIGNEY
Disponibilité : à convenir entre les parties
Vous pouvez indiquer plusieurs adresses e-mail séparées par des virgules
En cliquant sur le bouton, vous acceptez que les informations ci-dessus soient enregistrées par CBRE
Les offres ajoutées en favori seront perdues en fin de session. Pour conserver vos données et bénéficier d'autres avantages, nous vous invitons à vous identifier ou à créer un compte CBRE.