Location bureau ENTZHEIM - 378 m²

Localisation RUE SPITFIRE 67960 ENTZHEIM Voir sur Street View
Planifier une visitePlanifier une visite
Bureau Location 67960 ENTZHEIM  RUE SPITFIRE
Disponibilité Immédiate
Bureau Location 67960 ENTZHEIM  RUE SPITFIRE Bureau Location 67960 ENTZHEIM  RUE SPITFIRE

Ce bien vous intéresse ?

Afficher le numéro

Description Aménagements Surfaces Localisation Energies Infos Marché

Description

Annonce mise à jour le 02/10/2025

Rive Gauche CBRE vous propose un local d'activités/stockage avec une belle surface de bureaux, au sein du parc d'activité de l'Aéroport à Entzheim, , Situé dans un environnement dynamique, proche des axes routiers et des commodités. Parfait pour démarrer ou développer votre activité professionnelle.

Situé à 10 minutes au sud-ouest de Strasbourg, le Skyparc est idéalement positionné dans une zone en plein développement et bénéficie d'une desserte multimodale performante et complète.
 
Accès direct par l'autoroute A35.Connexion au Grand Contournement Ouest de Strasbourg.Raccordement direct vers l'Allemagne par la Rocade Sud.A 9 minutes de Strasbourg en train via la gare de l'Aéroport.Des vols nationaux & internationaux au départ de l'Aéroport.
 
Grâce à une réserve foncière de plus de 45 hectares, l'offre se développe considérablement.
Plusieurs sites permettent d'accueillir des activités logistiques, tertiaires, aéro industrielles et commerciales, de nouvelles technologies telles qu'une centrale photovoltaïque. L'Aeroparc d'Entzheim a déjà séduit une centaine d'entreprises et près de 1 300 salariés.

Aménagements

Aucune information disponible

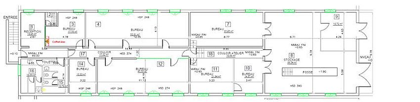
Surfaces

Aucune information disponible

Localisation

Localisation
RUE SPITFIRE 67960 ENTZHEIM
Facilités
• A35 à proximité
• Gare d'Entzheim à proximité
• Gare TGV de Strasbourg à 8 minutes via la navette en direction d'Entzheim Ouest avec correspondance TER (toutes les 10 à 15 minutes)
• Bus Ligne 12, navette n°42 et arrêt "Flex'hop"
• Aéroport International de Strasbourg-Entzheim à proximité

Energies

DPE

Diagnostic de performance énergétique

Informations sur le Marché

Loyer : 75 € HT/HC/m²/an
378 m²
Divisibilité min. 108 m²
75 € HT/HC/m²/an
 
378 m²
Divisibilité min. 108 m²
75 € HT/HC/m²/an
Lucie SCHOEFFEL

Votre contact

Lucie SCHOEFFEL

À l'envoi, vous acceptez nos CGU
Envie de faciliter votre recherche ? Créer un compte

Annonces similaires

Vos favoris

Les offres ajoutées en favori seront perdues en fin de session. Pour conserver vos données et bénéficier d'autres avantages, nous vous invitons à vous identifier ou à créer un compte CBRE.

Aucun élément trouvé.
Loading...