Tous les bureaux à louer
Tous les bureaux à vendre
Confier mon bien
Tous les coworking
Toutes les autres offres avec Néo-Nomade
Tous les entrepôts à louer
Tous les entrepôts à vendre
Tous les commerces à louer
Tous les commerces à vendre
Tous les commerces à céder
Aucun élément trouvé.
Ce bien vous intéresse ?
Afficher le numéro
Autres : Bureaux à louer Alsace
Annonce mise à jour le 08/10/2025
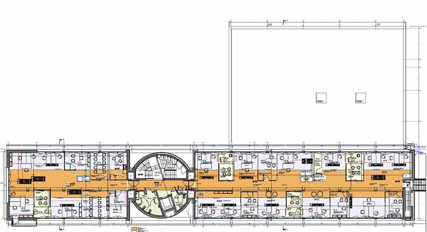
Au deuxième étage d'un bâtiment de bureaux totalement rénové en 2022, deux cellules de bureaux d'un total de 574.12 m² divisible à partir de 206.13 m². La première cellule de 367.99 m² se compose de 8 espaces de travail ouverts, de 4 bureaux individuels, d'espaces de détente et d'échanges. La seconde cellule de 206.13 m² se compose d'1 open-space, de locaux sociaux, de 2 pièces d'archives, de 2 salles de réunions, d'1 bureau individuel et d'1 espace de détente et d'échange. Le tout bénéficiant d'un accès à la Cafeteria au RDC.
DPE
Votre contact
Patrick MOUGIN
Location bureau MULHOUSE
Disponibilité : Immédiate.
Disponibilité : Nous consulter.
Disponibilité : Immédiate
Location bureau SAUSHEIM
Disponibilité : Nous consulter
Location bureau COLMAR
Location entrepôt / local d'activités SORGUES
Location bureau RUEIL MALMAISON
Cession commerce BAYONNE
Location bureau MONTROUGE
Location bureau BISCHHEIM
Disponibilité : Selon les lots - nous consulter
Location bureau LABEGE
Disponibilité : 18 mois ap. déb. trx
Location commerce NIORT
Location local d'activités AVIGNON
Disponibilité : 3eme trimestre 2024
Location entrepôt / local d'activités TOUFFLERS
Location commerce BIARD
Vous pouvez indiquer plusieurs adresses e-mail séparées par des virgules
En cliquant sur le bouton, vous acceptez que les informations ci-dessus soient enregistrées par CBRE
Les offres ajoutées en favori seront perdues en fin de session. Pour conserver vos données et bénéficier d'autres avantages, nous vous invitons à vous identifier ou à créer un compte CBRE.